服务热线:
烟台
切换城市
热门城市
烟台
威海
青岛
连云港
临沂
潍坊
网站首页
精品案例
装修产品
设计师
热装楼盘
家具软装
促销活动
家居展厅
关于鸿图
设计与报价
网站首页
装修产品
新房装修
婚房装修
旧房改造
商业空间
精品案例
设计师
首席设计师
主任设计师
设计师
热装楼盘
家具软装
促销活动
关于鸿图
企业简介
企业荣誉
家居展厅
联系我们
人才招聘
设计与报价
返回顶部
装修案例
当前位置:
首页
>
精品案例
预约TA
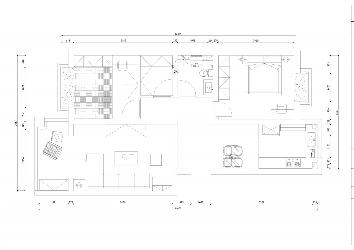
大河东小区103.3㎡中式
设计师-郭毅
预约TA
0
个赞
所在小区:大河东小区
装修风格:
建筑面积:103.3平米
装修造价:13万
户型:三室
关注:68次浏览
0
个赞
设计说明
这户业主年龄在七十岁上下,结合居住者的生活习惯来制定装修方案。整体以淡黄色为主基调,辅以白色,营造出温馨的空间效果,家具上整体采用布艺和木质,客厅地面通体铺地砖,运用波导线圈出简易造型,白色的吊顶由中心向外散射,给人以视觉上的稳重的感觉,落地窗让阳光可以通照整件屋子,浅色系的窗帘,简单而又稳重设计风格,让世上简约的空间氛围融入自然、温馨、舒适内敛的设计元素,突出居者的生活环境及生活习惯。
大河东小区103.3㎡中式
大河东小区103.3㎡中式
大河东小区103.3㎡中式
大河东小区103.3㎡中式
大河东小区103.3㎡中式
停止
播放
喜欢
其他相关案例
更多案例
爆米花甜品店
餐饮空间设计
盛德和兴家园86㎡现代简约风格装修效果图
其他相关案例
更多案例
紫薇台106平米美式:闲居安住 岁月静好
威海装修公司-莱茵小镇107平现代中式家装效果
水发润城汀园96㎡简欧风格装修效果图
半岛印象128平 后现代装修风格
免费量房
在线装修报价
立即预约>>
推荐设计师
更多
孙嘉翼
设计师
预约TA
潘婷
设计师
预约TA
于芹
首席设计师
预约TA
客户口碑
更多
富春山居业主送锦旗
锦旗表心意—兴盛名仕城业主
兴盛铭仕城业主送锦旗
安得利迎海花园业主送锦旗
最新活动
更多
时间:2019/09/20
地点:威海环翠区青岛中路39号(海韵华府朗郡三期)
环保不达标全负责
售后10次回访
5+1电话模式
一站式30分钟回复
Copyright © 烟台鸿图装饰公司 All rights reserved. 备案号:
鲁ICP备17005650号
网站制作
:
烟台智联网络公司
Copyright © 烟台鸿图装饰公司
首页
申请报价
活动报名
今日已有
341
位业主预约