服务热线:
0535-2110430

烟台
切换城市

热门城市

导航
返回顶部
返回顶部
当前位置:首页 > 精品案例

和达璟城 紫御165㎡新中式

设计师-

预约TA点赞 0 个赞
  • 所在小区:和达璟城 紫御

    装修风格:新中式

  • 建筑面积:165平米

    装修造价:19万

  • 户型:大户型

    关注:106次浏览

  • 点赞 0 个赞

设计说明

 在整体设计上保证功能性,实用性以外,也更加追求在整体空间的开阔和舒适性。 用现代感的金属线条与质朴的中式相碰撞,擦出不一样的火花。
 
停止播放
  • 电梯到入户为业主的私人空间,以此作为玄关,眼前一亮的视觉效果,白色家具搭配金属色的中式坐墩,以及软装搭配,使得玄关充满现代感却不失中式韵味。
  • 简介:
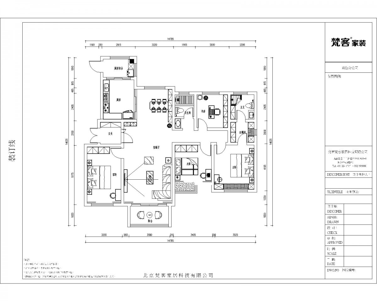
  • 户型方正,采光、通风良好。以白色和深胡桃色为主,搭配白色背景墙,让整个空间更加丰富和层次感。地面采用仿大理石的地砖,与深胡桃墙面的结合有一种古色古香的韵味。
  • 以胡桃色家具搭配白色墙面,使得书房与客厅相互呼应,山水墨画作为装饰,使得整个书房体现出舒适的读书时间。
  • 卧室为业主的孩子为主,相对比较喜欢清新少女的感觉,在确保与客厅相互呼应的前提下,把卧室背景墙做了一个处理,合理利用飘窗,使得整个空间满满的少女心,却不失中式韵味。
电梯到入户为业主的私人空间,以此作为玄关,眼前一亮的视觉效果,白色家具搭配金属色的中式坐墩,以及软装搭配,使得玄关充满现代感却不失中式韵味。			
简介: 户型方正,采光、通风良好。以白色和深胡桃色为主,搭配白色背景墙,让整个空间更加丰富和层次感。地面采用仿大理石的地砖,与深胡桃墙面的结合有一种古色古香的韵味。			
以胡桃色家具搭配白色墙面,使得书房与客厅相互呼应,山水墨画作为装饰,使得整个书房体现出舒适的读书时间。			
卧室为业主的孩子为主,相对比较喜欢清新少女的感觉,在确保与客厅相互呼应的前提下,把卧室背景墙做了一个处理,合理利用飘窗,使得整个空间满满的少女心,却不失中式韵味。
环保不达标全负责
环保不达标全负责
售后10次回访
售后10次回访
5+1电话模式
5+1电话模式
一站式·30分钟回复
一站式30分钟回复
Copyright © 烟台鸿图装饰公司 All rights reserved.            备案号:鲁ICP备17005650号            网站制作烟台智联网络公司 
Copyright © 烟台鸿图装饰公司
免费申请