服务热线:
0535-2110430

烟台
切换城市

热门城市

导航
返回顶部
返回顶部
当前位置:首页 > 精品案例

天山紫园210㎡简约美式

设计师-

预约TA点赞 0 个赞
  • 所在小区:天山紫园

    装修风格:美式

  • 建筑面积:210平米

    装修造价:26万

  • 户型:复式

    关注:99次浏览

  • 点赞 0 个赞

设计说明

 喧嚣的都市里我们总是渴望着拥有一个清净平和如世外桃源般的家,在经过一天的烦扰之后来放逐心灵,追求诗和远方带着自然的清凉绿似乎正与此不谋而合,通过空间合理分解,将客餐厅放置在一个空间。
 
停止播放
  • 简介:
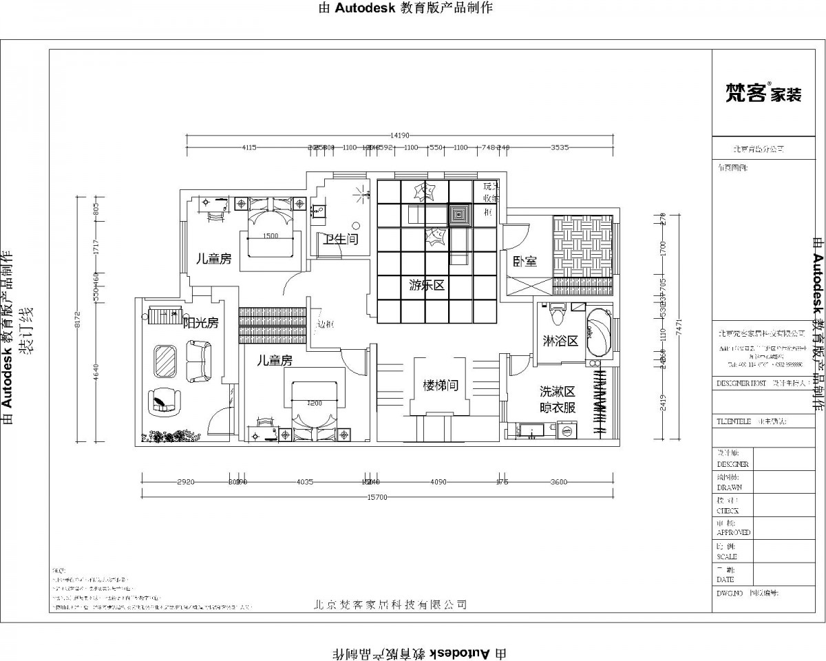
  • 玄关作为入户的位置,因此,玄关处作为重中之重,把设计元素体现出来,利用曲线以及半圆式玄关柜的搭配,使得玄关有一种亲切感。
  • 餐厅吊顶不再是单一回字形吊顶,利用所选择家具样式设计圆形吊顶,体现整个家装风格中的柔线性。
  • 此为儿童娱乐区,便把颜色刷为明快一些的色彩,并设有护墙板,达到美观及耐脏的效果。
  • 二层由于是一个大房间,改为两个卧室从而满足两个孩子的居住需求。因为小朋友为小女孩,便以浅灰及粉色搭配,这样的搭配不会过时,加上软装的搭配,使得儿童房有了一种亲切小公主的感觉。
简介: 玄关作为入户的位置,因此,玄关处作为重中之重,把设计元素体现出来,利用曲线以及半圆式玄关柜的搭配,使得玄关有一种亲切感。			
餐厅吊顶不再是单一回字形吊顶,利用所选择家具样式设计圆形吊顶,体现整个家装风格中的柔线性。			
此为儿童娱乐区,便把颜色刷为明快一些的色彩,并设有护墙板,达到美观及耐脏的效果。			
二层由于是一个大房间,改为两个卧室从而满足两个孩子的居住需求。因为小朋友为小女孩,便以浅灰及粉色搭配,这样的搭配不会过时,加上软装的搭配,使得儿童房有了一种亲切小公主的感觉。
环保不达标全负责
环保不达标全负责
售后10次回访
售后10次回访
5+1电话模式
5+1电话模式
一站式·30分钟回复
一站式30分钟回复
Copyright © 烟台鸿图装饰公司 All rights reserved.            备案号:鲁ICP备17005650号            网站制作烟台智联网络公司 
Copyright © 烟台鸿图装饰公司
免费申请