服务热线:
烟台
切换城市
热门城市
烟台
威海
青岛
连云港
临沂
潍坊
网站首页
精品案例
装修产品
设计师
热装楼盘
家具软装
促销活动
家居展厅
关于鸿图
设计与报价
网站首页
装修产品
新房装修
婚房装修
旧房改造
商业空间
精品案例
设计师
首席设计师
主任设计师
设计师
热装楼盘
家具软装
促销活动
关于鸿图
企业简介
企业荣誉
家居展厅
联系我们
人才招聘
设计与报价
返回顶部
装修案例
当前位置:
首页
>
精品案例
预约TA
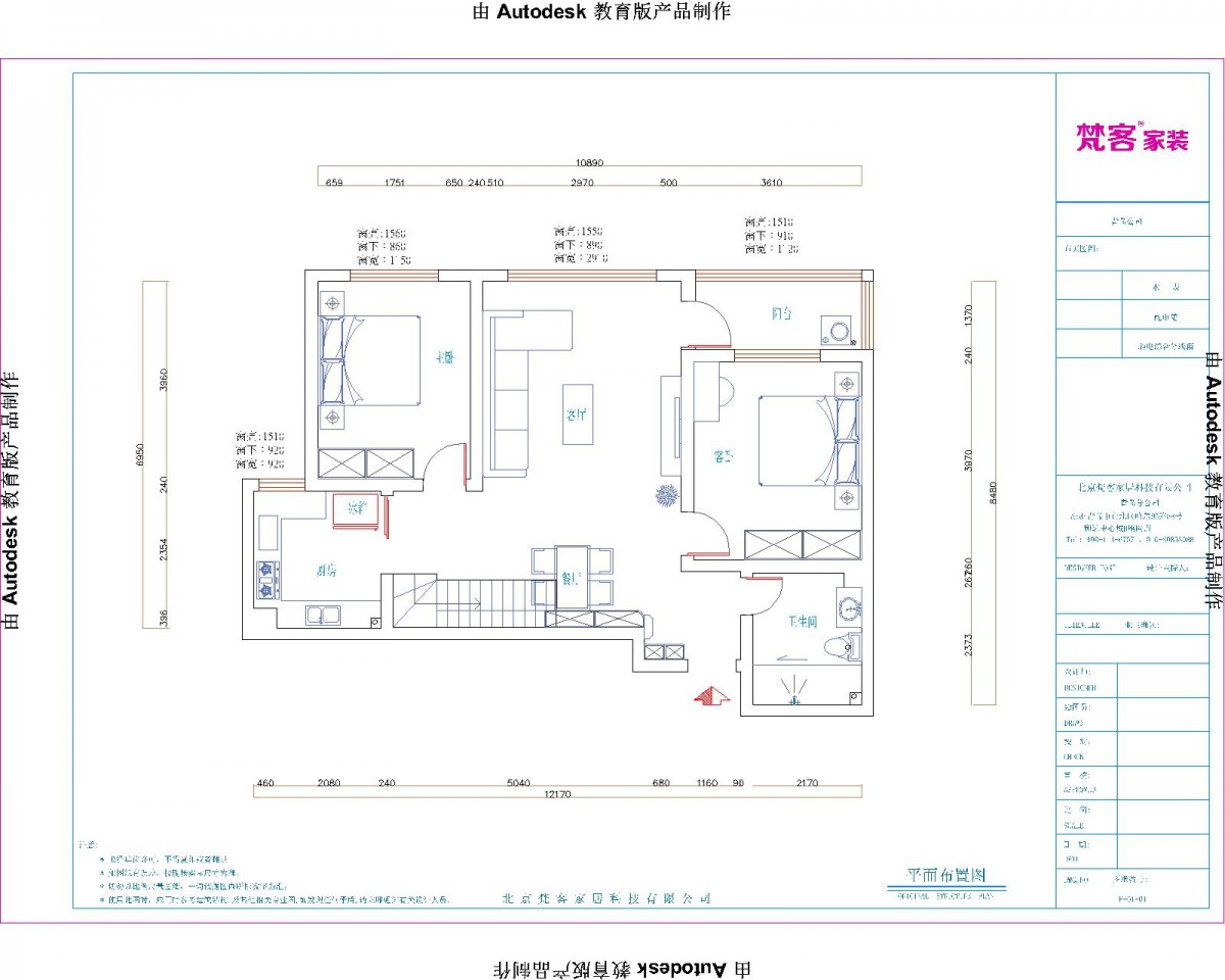
新城市花园160㎡简欧
设计师-郭毅
预约TA
0
个赞
所在小区:新城市花园
装修风格:欧式
建筑面积:160平米
装修造价:15万
户型:复式
关注:86次浏览
0
个赞
设计说明
大体的风格是选的简欧,在做图的时候突然想到了冷色系,就想用冷色系来做一次简欧的风格,效果也是出人预料的,冷色系与简欧的碰撞也是让人眼前一亮的,楼梯底部选择了用柜子,这样的话楼梯底部的空间就利用了起来。
新城市花园160㎡简欧
新城市花园160㎡简欧
新城市花园160㎡简欧
新城市花园160㎡简欧
新城市花园160㎡简欧
停止
播放
喜欢
其他相关案例
更多案例
整体家装—【桦林彩云城】现代简约风格装修效
江南四季餐饮空间设计
鸿图装饰:东骏阅山现代简约风格三居室装修
其他相关案例
更多案例
冰激凌店面装修设计
依云小镇80㎡现代
莱阳国际公馆—简欧风格装修效果图
书店效果图
免费量房
在线装修报价
立即预约>>
推荐设计师
更多
孙嘉翼
设计师
预约TA
潘婷
设计师
预约TA
于芹
首席设计师
预约TA
客户口碑
更多
富春山居业主送锦旗
锦旗表心意—兴盛名仕城业主
兴盛铭仕城业主送锦旗
安得利迎海花园业主送锦旗
最新活动
更多
时间:2019/09/20
地点:威海环翠区青岛中路39号(海韵华府朗郡三期)
环保不达标全负责
售后10次回访
5+1电话模式
一站式30分钟回复
Copyright © 烟台鸿图装饰公司 All rights reserved. 备案号:
鲁ICP备17005650号
网站制作
:
烟台智联网络公司
Copyright © 烟台鸿图装饰公司
首页
申请报价
活动报名
今日已有
341
位业主预约