服务热线:
0535-2110430

烟台
切换城市

热门城市

导航
返回顶部
返回顶部
当前位置:首页 > 精品案例

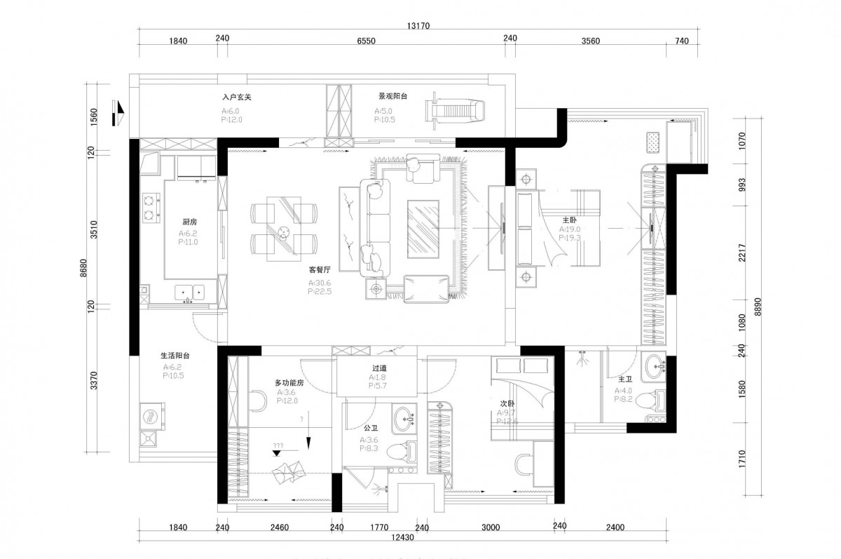
鲁信长春120㎡中式

设计师-

预约TA点赞 0 个赞
  • 所在小区:鲁信长春

    装修风格:新中式

  • 建筑面积:120平米

    装修造价:13万

  • 户型:三室

    关注:89次浏览

  • 点赞 0 个赞

设计说明

 中国传统的室内设计融合了庄重与优雅双重气质。中式风格更多的利用了后现代手法,把传统的结构形式通过重新设计组合以另一种民族特色的标志出现。
 
停止播放
  • 新中式风格讲究纲常,讲究对称,以阴阳平衡概念调和室内生态。选用天然的装饰材料,运用“金、木、水、火、土”五种元素的组合规律来营造禅宗式的理性和宁静环境。
  • 简介:
  • 中式风格一般都比较稳重,很成熟的风格。而现代中式风格只是局部的采用中式风格处理,大体的设计比较简洁。从装饰部分选材也比较广泛,搭配时尚,效果比古典中式风格清爽,比较适合中老年人的吹捧。
  • 中国古人对居住环境的研究和追求,其精雕细琢远远超过我们的想象。他们的一些室内设计理念,和如今最流行的简约主义很有一些不谋而合之处。
  • 使用“新中式”装饰风格,不仅需要对传统文化谙熟于心,而且要对室内设计有所了解,还要能让二者的结合相得益彰。
新中式风格讲究纲常,讲究对称,以阴阳平衡概念调和室内生态。选用天然的装饰材料,运用“金、木、水、火、土”五种元素的组合规律来营造禅宗式的理性和宁静环境。			
简介: 中式风格一般都比较稳重,很成熟的风格。而现代中式风格只是局部的采用中式风格处理,大体的设计比较简洁。从装饰部分选材也比较广泛,搭配时尚,效果比古典中式风格清爽,比较适合中老年人的吹捧。			
中国古人对居住环境的研究和追求,其精雕细琢远远超过我们的想象。他们的一些室内设计理念,和如今最流行的简约主义很有一些不谋而合之处。			
使用“新中式”装饰风格,不仅需要对传统文化谙熟于心,而且要对室内设计有所了解,还要能让二者的结合相得益彰。
环保不达标全负责
环保不达标全负责
售后10次回访
售后10次回访
5+1电话模式
5+1电话模式
一站式·30分钟回复
一站式30分钟回复
Copyright © 烟台鸿图装饰公司 All rights reserved.            备案号:鲁ICP备17005650号            网站制作烟台智联网络公司 
Copyright © 烟台鸿图装饰公司
免费申请