服务热线:
0535-2110430
烟台
切换城市
热门城市
烟台
网站首页
精品案例
装修产品
设计师
热装楼盘
家具软装
促销活动
家居展厅
关于鸿图
设计与报价
网站首页
装修产品
新房装修
婚房装修
旧房改造
商业空间
精品案例
设计师
首席设计师
主任设计师
设计师
热装楼盘
家具软装
促销活动
关于鸿图
企业简介
企业荣誉
家居展厅
联系我们
人才招聘
设计与报价
返回顶部
装修案例
当前位置:
首页
>
精品案例
预约TA
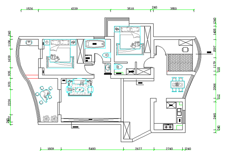
威海室内设计-百度城126平 日式风格装修三室两厅效果图
设计师-
预约TA
2
个赞
所在小区:百度城
装修风格:
建筑面积:126平米
装修造价:14万
户型:三室
关注:164次浏览
2
个赞
设计说明
日式风格装修主要颜色以白色原木色为主,顶面为白色PPG大师漆,墙面原木色地板上墙,家具为原木色多层实木材质,厨房开放式做了个简单的小吧台,客厅与餐厅做了个黑色木框玻璃隔断,卧室做了个简单的飘窗柜,用石膏板做了个电视柜,卫生间台上盆木栅隔断,方格地砖。
威海室内设计-百度城126平 日式风格装修三室两厅效果图
威海室内设计-百度城126平 日式风格装修三室两厅效果图
威海室内设计-百度城126平 日式风格装修三室两厅效果图
威海室内设计-百度城126平 日式风格装修三室两厅效果图
威海室内设计-百度城126平 日式风格装修三室两厅效果图
停止
播放
喜欢
其他相关案例
更多案例
海信盟旺世家95㎡暖色简欧风格装修案例
【龙湖葡醍海湾】优雅现代北欧风格大宅装修效
中联依山伴城115㎡新中式实景装修风格
其他相关案例
更多案例
高级灰色系:学府小区现代风格设计案例鉴赏
【中海海悦府】260平米欧式风格装修案例
天越湾476平米大家之风:现代美式风格设计案
鲁信长春145㎡中式
免费量房
在线装修报价
立即预约>>
推荐设计师
更多
王旭
预约TA
李卫卫
设计师
预约TA
王立燕
设计师
预约TA
客户口碑
更多
富春山居业主送锦旗
锦旗表心意—兴盛名仕城业主
兴盛铭仕城业主送锦旗
安得利迎海花园业主送锦旗
最新活动
更多
时间:2019/09/20
地点:威海环翠区青岛中路39号(海韵华府朗郡三期)
环保不达标全负责
售后10次回访
5+1电话模式
一站式30分钟回复
Copyright © 烟台鸿图装饰公司 All rights reserved. 备案号:
鲁ICP备17005650号
网站制作
:
烟台智联网络公司
Copyright © 烟台鸿图装饰公司
首页
申请报价
活动报名
2110430
今日已有
343
位业主预约