服务热线:
0535-2110430

烟台
切换城市

热门城市

导航
返回顶部
返回顶部
当前位置:首页 > 精品案例

保利红叶谷130平 高级灰北欧风格家装设计效果图

设计师-

预约TA点赞 3 个赞
  • 所在小区:保利红叶谷

    装修风格:北欧

  • 建筑面积:130平米

    装修造价:14万

  • 户型:三室

    关注:263次浏览

  • 点赞 3 个赞

设计说明

对现代人来说,居住的环境尤为重要,装修布置讲求个性,尤其是青年人在布置房间时,喜欢独树一帜、别具一格的装修模式。黑与白是极简主义的代表色,虽说北欧风装修看起来较为单调清新,但是色彩的运用包容性却很大,灰色、黑色、白色等原色都可以出现在北欧的装修中,表达的是一种低调的宁静感,沉稳而内敛

停止播放
  • 简介:
  • 简介:
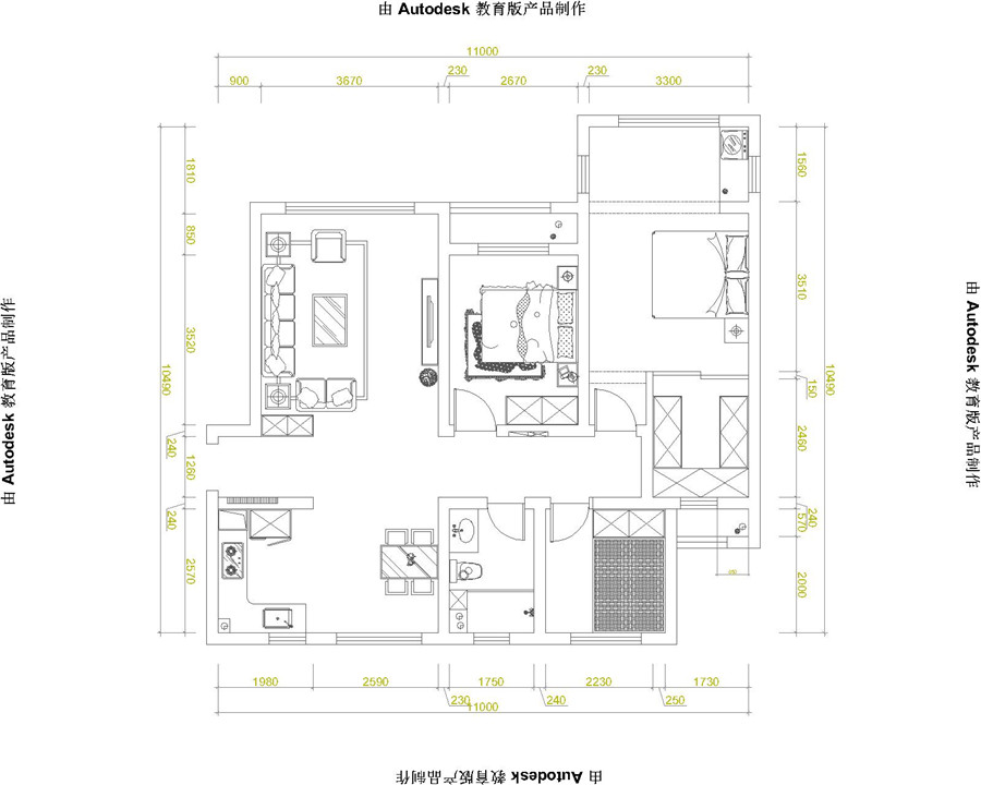
  • 保利红叶谷130户型平面图
  • 简介:
  • 简介:
简介: 简介: 保利红叶谷130户型平面图 简介: 简介:
环保不达标全负责
环保不达标全负责
售后10次回访
售后10次回访
5+1电话模式
5+1电话模式
一站式·30分钟回复
一站式30分钟回复
Copyright © 烟台鸿图装饰公司 All rights reserved.            备案号:鲁ICP备17005650号            网站制作烟台智联网络公司 
Copyright © 烟台鸿图装饰公司
免费申请