服务热线:
烟台
切换城市
热门城市
烟台
威海
青岛
连云港
临沂
潍坊
网站首页
精品案例
装修产品
设计师
热装楼盘
家具软装
促销活动
家居展厅
关于鸿图
设计与报价
网站首页
装修产品
新房装修
婚房装修
旧房改造
商业空间
精品案例
设计师
首席设计师
主任设计师
设计师
热装楼盘
家具软装
促销活动
关于鸿图
企业简介
企业荣誉
家居展厅
联系我们
人才招聘
设计与报价
返回顶部
装修案例
当前位置:
首页
>
精品案例
预约TA
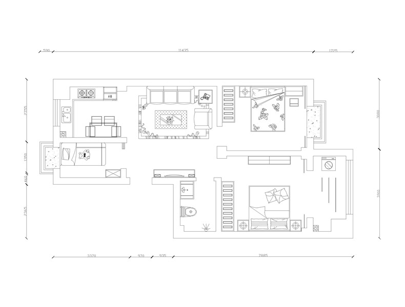
威海室内设计:威海碧海豪庭90平_北欧风格装修案例
设计师-张雪莉
预约TA
71
个赞
所在小区:威海碧海豪庭
装修风格:北欧
建筑面积:90平米
装修造价:9万
户型:两室
关注:219次浏览
71
个赞
设计说明
北欧牧风,将游牧民族的热情血脉与自然灵感相融合,摒弃蛊惑人心的虚华设计,追求自然的艺术智慧与灵感,讲究以人为本,把注重舒适体验度放在首位,风格简洁、直接、功能化且贴近自然,多体现生命力多维度工业艺术品。
威海室内设计:威海碧海豪庭90平_北欧风格装修案例
威海室内设计:威海碧海豪庭90平_北欧风格装修案例
威海室内设计:威海碧海豪庭90平_北欧风格装修案例
威海室内设计:威海碧海豪庭90平_北欧风格装修案例
威海室内设计:威海碧海豪庭90平_北欧风格装修案例
停止
播放
喜欢
其他相关案例
更多案例
威海百度城126㎡家装 北欧风装修效果图
天越湾476平米大家之风:现代美式风格设计案
台球厅装修设计
其他相关案例
更多案例
龙泽府135㎡北欧风 三室两厅装修效果图
健身房(凯伦菲勒)
融科洱海案例—简约禅意空间设计
【万达华府】130平米后现代风格装修设计案例
免费量房
在线装修报价
立即预约>>
推荐设计师
更多
孙嘉翼
设计师
预约TA
潘婷
设计师
预约TA
于芹
首席设计师
预约TA
客户口碑
更多
富春山居业主送锦旗
锦旗表心意—兴盛名仕城业主
兴盛铭仕城业主送锦旗
安得利迎海花园业主送锦旗
最新活动
更多
时间:2019/09/20
地点:威海环翠区青岛中路39号(海韵华府朗郡三期)
环保不达标全负责
售后10次回访
5+1电话模式
一站式30分钟回复
Copyright © 烟台鸿图装饰公司 All rights reserved. 备案号:
鲁ICP备17005650号
网站制作
:
烟台智联网络公司
Copyright © 烟台鸿图装饰公司
首页
申请报价
活动报名
今日已有
341
位业主预约