服务热线:
0535-2110430

烟台
切换城市

热门城市

导航
返回顶部
返回顶部
当前位置:首页 > 精品案例

【威海威森万达花园】95㎡现代风格客厅效果图清爽冰凉

设计师-

预约TA点赞 69 个赞
  • 所在小区:威森万达花园

    装修风格:现代简约

  • 建筑面积:95平米

    装修造价:11万

  • 户型:三室

    关注:226次浏览

  • 点赞 69 个赞

设计说明

生机勃勃的春季,万物复苏长出新的鲜绿生命,此时装修是最好的,现代简约风格特点外形简洁、功能强,强调室内空间形态和物件的单一性、抽象性。
都市忙碌生活,早已经让我们烦腻了花天酒地,灯红酒绿,我们更喜欢的一个安静,祥和,现代简约装修风格看上去明朗宽敞舒适的家,来消除工作的疲惫,忘却都市的喧闹。
现代风格客厅效果图以简介风为主,地面淡灰色清凉瓷砖映衬纯白色墙面,让人不惧怕炎热夏季的到来!
停止播放
  • 现代简约式家装
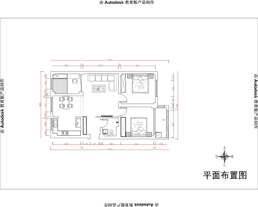
  • 威森万达花园95平民户型图
  • 现代风格客厅效果图
  • 现代简约风格装修图片-厨房
  • 现代简约装修风格-卧室
现代简约式家装 威森万达花园95平民户型图 现代风格客厅效果图 现代简约风格装修图片-厨房 现代简约装修风格-卧室
环保不达标全负责
环保不达标全负责
售后10次回访
售后10次回访
5+1电话模式
5+1电话模式
一站式·30分钟回复
一站式30分钟回复
Copyright © 烟台鸿图装饰公司 All rights reserved.            备案号:鲁ICP备17005650号            网站制作烟台智联网络公司 
Copyright © 烟台鸿图装饰公司
免费申请