服务热线:
烟台
切换城市
热门城市
烟台
威海
青岛
连云港
临沂
潍坊
网站首页
精品案例
装修产品
设计师
热装楼盘
家具软装
促销活动
家居展厅
关于鸿图
设计与报价
网站首页
装修产品
新房装修
婚房装修
旧房改造
商业空间
精品案例
设计师
首席设计师
主任设计师
设计师
热装楼盘
家具软装
促销活动
关于鸿图
企业简介
企业荣誉
家居展厅
联系我们
人才招聘
设计与报价
返回顶部
装修案例
当前位置:
首页
>
精品案例
预约TA
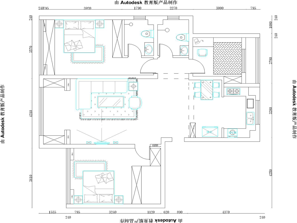
龙泽府135㎡北欧风 三室两厅装修效果图
设计师-丁开放
预约TA
79
个赞
所在小区:威海龙泽府
装修风格:北欧
建筑面积:15.5平米
装修造价:17万
户型:三室
关注:199次浏览
79
个赞
设计说明
扩展型二胎家庭装修,之前家里面积太小,换个稍微大点的房子,可满足短期住5人,三室两厅装修效果图,倾向于喜欢时尚北欧风装修风格
户型设计缺点:
1.主卧缺少合理的衣物收纳空间,所以做了一排飘窗柜
2.客厅和餐厅的比例分配不均,餐厅部分偏小
3.次卧缺少合理的衣物收纳空间
三室两厅装修效果图
空间设计优化方案:
1.卧室外墙推掉做飘窗
2.阳台做两排柜子,客厅正常
3.小卧室采用榻榻米装修
4.设计U型厨房,餐厅面积明显扩大,卫生间太小洗衣机放在厨房
龙泽府135㎡北欧风 三室两厅装修效果图
龙泽府135㎡北欧风 三室两厅装修效果图
龙泽府135㎡北欧风 三室两厅装修效果图
龙泽府135㎡北欧风 三室两厅装修效果图
龙泽府135㎡北欧风 三室两厅装修效果图
停止
播放
喜欢
其他相关案例
更多案例
烟台装修—健身房装修案例
天山紫园210㎡简约美式
中小型美发店装修设计效果图
其他相关案例
更多案例
威海室内设计-百度城126平 日式风格装修三室
海信盟旺世家95㎡暖色简欧风格装修案例
阳光邑上62㎡北欧风格装修效果图
烟台工装案例——酒店客房设计方案
免费量房
在线装修报价
立即预约>>
推荐设计师
更多
孙嘉翼
设计师
预约TA
潘婷
设计师
预约TA
于芹
首席设计师
预约TA
客户口碑
更多
富春山居业主送锦旗
锦旗表心意—兴盛名仕城业主
兴盛铭仕城业主送锦旗
安得利迎海花园业主送锦旗
最新活动
更多
时间:2019/09/20
地点:威海环翠区青岛中路39号(海韵华府朗郡三期)
环保不达标全负责
售后10次回访
5+1电话模式
一站式30分钟回复
Copyright © 烟台鸿图装饰公司 All rights reserved. 备案号:
鲁ICP备17005650号
网站制作
:
烟台智联网络公司
Copyright © 烟台鸿图装饰公司
首页
申请报价
活动报名
今日已有
341
位业主预约