服务热线:
0535-2110430

烟台
切换城市

热门城市

导航
返回顶部
返回顶部
当前位置:首页 > 精品案例

泰晤士小镇时尚高级灰彰显现代气息

设计师-

预约TA点赞 66 个赞
  • 所在小区:泰晤士小镇

    装修风格:现代简约

  • 建筑面积:110平米

    装修造价:17万

  • 户型:别墅

    关注:258次浏览

  • 点赞 66 个赞

设计说明

  现代简约风格现代风格装饰特点:由曲线和非对称线条构成,如花梗、花蕾、葡萄藤、昆虫翅膀以及自然界各种优美、波状的形体图案等,体现再墙面、栏杆、窗棂和家具等装饰上。线条有的柔美雅致,有的遒劲而富于节奏感,整个立体形式都与有条不紊的、有节奏的曲线融为一体。大量使用铁制构件,将玻璃、瓷砖等新工艺,以及铁艺制品、陶艺制品等综合运用于室内。注意室内外沟通,竭力给室内装饰艺术引入新意,以及整体风格简约大气。
停止播放
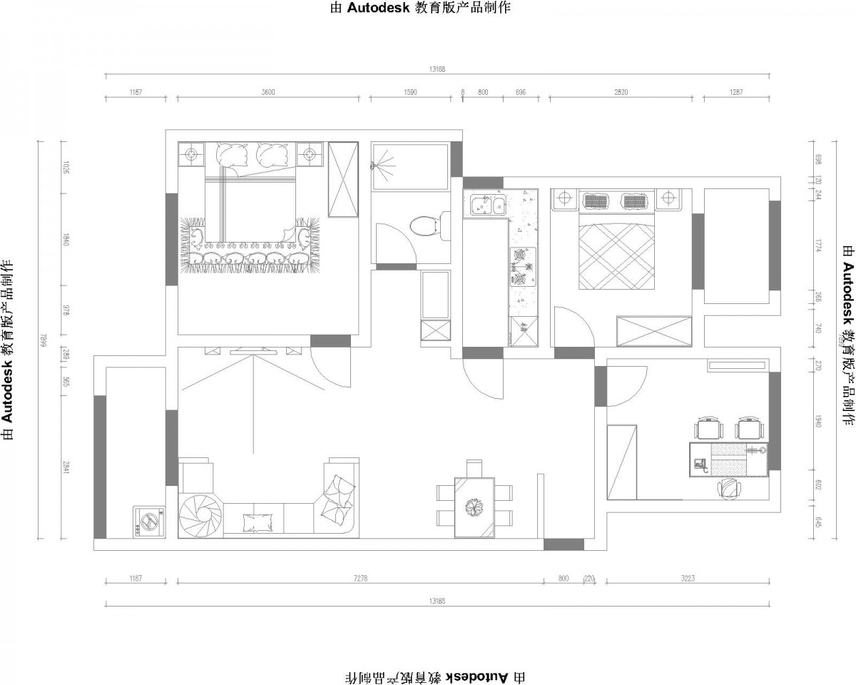
  • 卫生间我们是用灰色的地砖和墙砖作为基础,搭配木色的浴室柜来保证空间层次感也符合简约的风格.灰色地砖和墙砖的间隙会用白色最为点缀
  • 简介:
  • 户型方正,采光、通风良好。以白色和灰色为主,搭配黑色背景墙,让整个空间更加丰富和层次感。地面采用白灰相间的地砖用一些彩色搭配呈现出简约的风格
  • 户型原因做的闭门式厨房,用人造石(石英石)来做一个台面把冰箱做成了嵌入式节省厨房的空间.以白色为主,橱柜的颜色用的实木色.让空间的层次感更加丰富也保证了简约的风格.两种颜色的搭配也保证了不让您会视觉疲劳
  • 卧室以灰色为主,白色作为点缀用灰木色的地板让整齐大气床用一些彩色作为点缀保证房间的协调性
卫生间我们是用灰色的地砖和墙砖作为基础,搭配木色的浴室柜来保证空间层次感也符合简约的风格.灰色地砖和墙砖的间隙会用白色最为点缀 简介: 户型方正,采光、通风良好。以白色和灰色为主,搭配黑色背景墙,让整个空间更加丰富和层次感。地面采用白灰相间的地砖用一些彩色搭配呈现出简约的风格 户型原因做的闭门式厨房,用人造石(石英石)来做一个台面把冰箱做成了嵌入式节省厨房的空间.以白色为主,橱柜的颜色用的实木色.让空间的层次感更加丰富也保证了简约的风格.两种颜色的搭配也保证了不让您会视觉疲劳 卧室以灰色为主,白色作为点缀用灰木色的地板让整齐大气床用一些彩色作为点缀保证房间的协调性
环保不达标全负责
环保不达标全负责
售后10次回访
售后10次回访
5+1电话模式
5+1电话模式
一站式·30分钟回复
一站式30分钟回复
Copyright © 烟台鸿图装饰公司 All rights reserved.            备案号:鲁ICP备17005650号            网站制作烟台智联网络公司 
Copyright © 烟台鸿图装饰公司
免费申请