服务热线:
0535-2110430

烟台
切换城市

热门城市

导航
返回顶部
返回顶部
当前位置:首页 > 精品案例

温泉休闲空间设计

设计师-

预约TA点赞 0 个赞
  • 所在小区:

    装修风格:

  • 建筑面积:1300平米

    装修造价:0万

  • 户型:商业空间

    关注:117次浏览

  • 点赞 0 个赞

设计说明

 随着现代生活的快节奏,与日俱增的工作压力,越来越多的人面对压力,却是单方面的选择承受,而无法寻找到一种适合释放的途径,面对种种商业压力,空间设计师在这方面做出了合理的一个解决方案,那就是在商业空间中融入休闲空间,无论是是在办公楼,还是在上班的路上,或者在购物时都能在休闲空间中得到一种精神压力的释放。商业休闲空间的设计比其它的休闲方式更为方便、有效,即触即到,而且商业的休闲空间基本上完全是免费的,也可以说足不出城也可以换来自主、随意、放松、释放、感受新潮的目的和需求。


查看更多案例:http://www.qdhont100.com/casenew/
停止播放
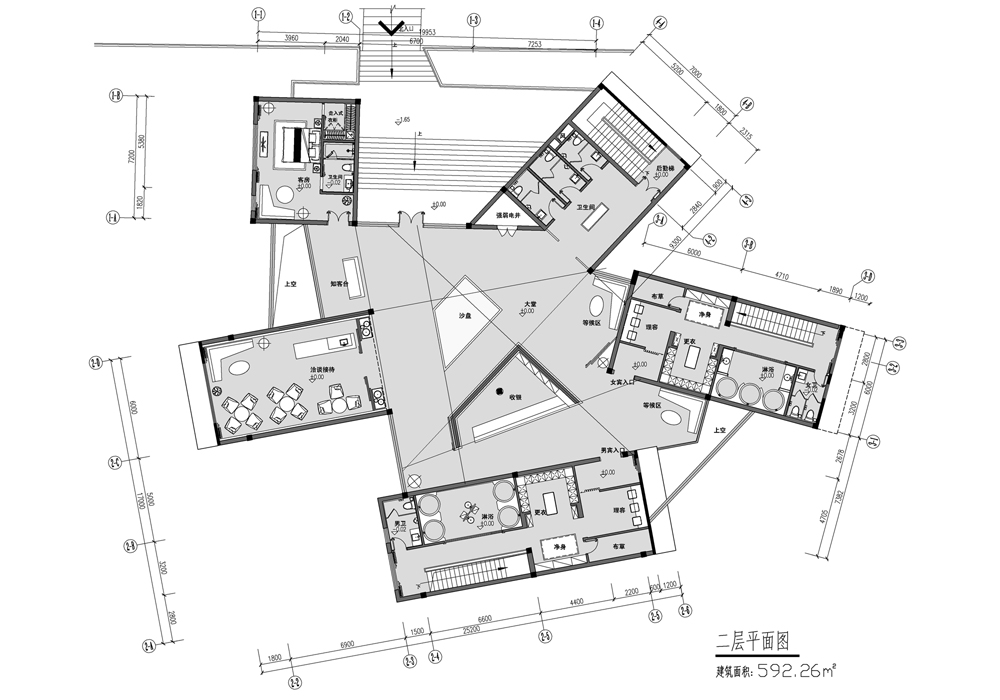
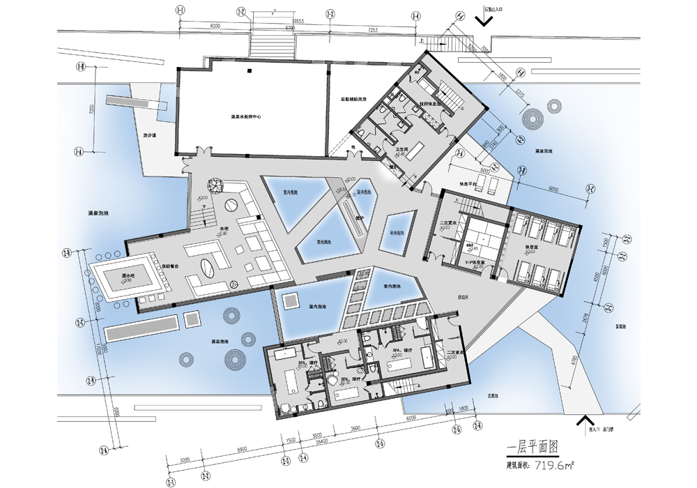
  • 这是一个肩负双重功能的体验空间,即是温泉酒店建成前的一个体验馆,也要包括温泉地块内商业别墅的一个楼盘介绍。
  • 这是一个肩负双重功能的体验空间,即是温泉酒店建成前的一个体验馆,也要包括温泉地块内商业别墅的一个楼盘介绍。
  • 这是一个肩负双重功能的体验空间,即是温泉酒店建成前的一个体验馆,也要包括温泉地块内商业别墅的一个楼盘介绍。
  • 这是一个肩负双重功能的体验空间,即是温泉酒店建成前的一个体验馆,也要包括温泉地块内商业别墅的一个楼盘介绍。
  • 这是一个肩负双重功能的体验空间,即是温泉酒店建成前的一个体验馆,也要包括温泉地块内商业别墅的一个楼盘介绍。
这是一个肩负双重功能的体验空间,即是温泉酒店建成前的一个体验馆,也要包括温泉地块内商业别墅的一个楼盘介绍。 这是一个肩负双重功能的体验空间,即是温泉酒店建成前的一个体验馆,也要包括温泉地块内商业别墅的一个楼盘介绍。 这是一个肩负双重功能的体验空间,即是温泉酒店建成前的一个体验馆,也要包括温泉地块内商业别墅的一个楼盘介绍。 这是一个肩负双重功能的体验空间,即是温泉酒店建成前的一个体验馆,也要包括温泉地块内商业别墅的一个楼盘介绍。 这是一个肩负双重功能的体验空间,即是温泉酒店建成前的一个体验馆,也要包括温泉地块内商业别墅的一个楼盘介绍。
环保不达标全负责
环保不达标全负责
售后10次回访
售后10次回访
5+1电话模式
5+1电话模式
一站式·30分钟回复
一站式30分钟回复
Copyright © 烟台鸿图装饰公司 All rights reserved.            备案号:鲁ICP备17005650号            网站制作烟台智联网络公司 
Copyright © 烟台鸿图装饰公司
免费申请