服务热线:
0535-2110430
烟台
切换城市
热门城市
烟台
网站首页
精品案例
装修产品
设计师
热装楼盘
家具软装
促销活动
家居展厅
关于鸿图
设计与报价
网站首页
装修产品
新房装修
婚房装修
旧房改造
商业空间
精品案例
设计师
首席设计师
主任设计师
设计师
热装楼盘
家具软装
促销活动
关于鸿图
企业简介
企业荣誉
家居展厅
联系我们
人才招聘
设计与报价
返回顶部
装修案例
当前位置:
首页
>
精品案例
预约TA
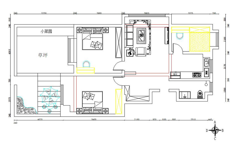
山海城110㎡新中式风格装修效果图
设计师-
预约TA
96
个赞
所在小区:山海城
装修风格:新中式
建筑面积:110平米
装修造价:10万
户型:三室
关注:126次浏览
96
个赞
设计说明
设计师说:整提格局特别好,根据业主要求来改造原始户型。
查看更多精品案例:
http://www.whhont100.com/casenew/
山海城110㎡新中式风格装修效果图
山海城110㎡新中式风格装修效果图
山海城110㎡新中式风格装修效果图
山海城110㎡新中式风格装修效果图
山海城110㎡新中式风格装修效果图
停止
播放
喜欢
其他相关案例
更多案例
威海阳光水岸装修案例_123平三室两厅装修设计
碧海豪庭 90平现代风格装修设计效果图
民宿民居设计
其他相关案例
更多案例
【鸿图装饰】华明星海湾现代简约风格效果图
【万达华府】130平米后现代风格装修设计案例
伴山一号紫林园—130平米新中式风格效果图品
天一仁和天境129㎡现代简约风格装修效果图
免费量房
在线装修报价
立即预约>>
推荐设计师
更多
王旭
预约TA
李卫卫
设计师
预约TA
王立燕
设计师
预约TA
客户口碑
更多
富春山居业主送锦旗
锦旗表心意—兴盛名仕城业主
兴盛铭仕城业主送锦旗
安得利迎海花园业主送锦旗
最新活动
更多
时间:2019/09/20
地点:威海环翠区青岛中路39号(海韵华府朗郡三期)
环保不达标全负责
售后10次回访
5+1电话模式
一站式30分钟回复
Copyright © 烟台鸿图装饰公司 All rights reserved. 备案号:
鲁ICP备17005650号
网站制作
:
烟台智联网络公司
Copyright © 烟台鸿图装饰公司
首页
申请报价
活动报名
2110430
今日已有
343
位业主预约