服务热线:
烟台
切换城市
热门城市
烟台
威海
青岛
连云港
临沂
潍坊
网站首页
精品案例
装修产品
设计师
热装楼盘
家具软装
促销活动
家居展厅
关于鸿图
设计与报价
网站首页
装修产品
新房装修
婚房装修
旧房改造
商业空间
精品案例
设计师
首席设计师
主任设计师
设计师
热装楼盘
家具软装
促销活动
关于鸿图
企业简介
企业荣誉
家居展厅
联系我们
人才招聘
设计与报价
返回顶部
装修案例
当前位置:
首页
>
精品案例
预约TA
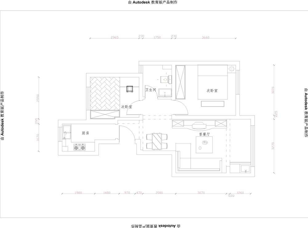
威海昌鸿小区79平-现代简约家装设计效果图
设计师-王云仓
预约TA
3
个赞
所在小区:威海昌鸿小区
装修风格:北欧
建筑面积:79平米
装修造价:9万
户型:两室
关注:140次浏览
3
个赞
设计说明
渐进式黄色系软装配饰,配以低调的色彩运用,搭配精湛细腻的材质,主旨在于体现干净清爽的基调,暖色的黄增添了家居的温馨
威海昌鸿小区79平-现代简约家装设计效果图
威海昌鸿小区79平-现代简约家装设计效果图
威海昌鸿小区79平-现代简约家装设计效果图
威海昌鸿小区79平-现代简约家装设计效果图
停止
播放
喜欢
其他相关案例
更多案例
咖啡馆—商业空间设计
龙泽府135㎡北欧风 三室两厅装修效果图
烟台装修公司—鸿图装饰富甲逸品美式风格装修
其他相关案例
更多案例
工业风餐厅设计
威海万和花园:100平装修效果图现代简约风轻奢
【中正公馆】田园风格温馨浪漫美图鉴赏—烟台
伟东·幸福之城128㎡新古典
免费量房
在线装修报价
立即预约>>
推荐设计师
更多
孙嘉翼
设计师
预约TA
潘婷
设计师
预约TA
于芹
首席设计师
预约TA
客户口碑
更多
富春山居业主送锦旗
锦旗表心意—兴盛名仕城业主
兴盛铭仕城业主送锦旗
安得利迎海花园业主送锦旗
最新活动
更多
时间:2019/09/20
地点:威海环翠区青岛中路39号(海韵华府朗郡三期)
环保不达标全负责
售后10次回访
5+1电话模式
一站式30分钟回复
Copyright © 烟台鸿图装饰公司 All rights reserved. 备案号:
鲁ICP备17005650号
网站制作
:
烟台智联网络公司
Copyright © 烟台鸿图装饰公司
首页
申请报价
活动报名
今日已有
341
位业主预约