服务热线:

导航
返回顶部
返回顶部
当前位置:首页 > 精品案例

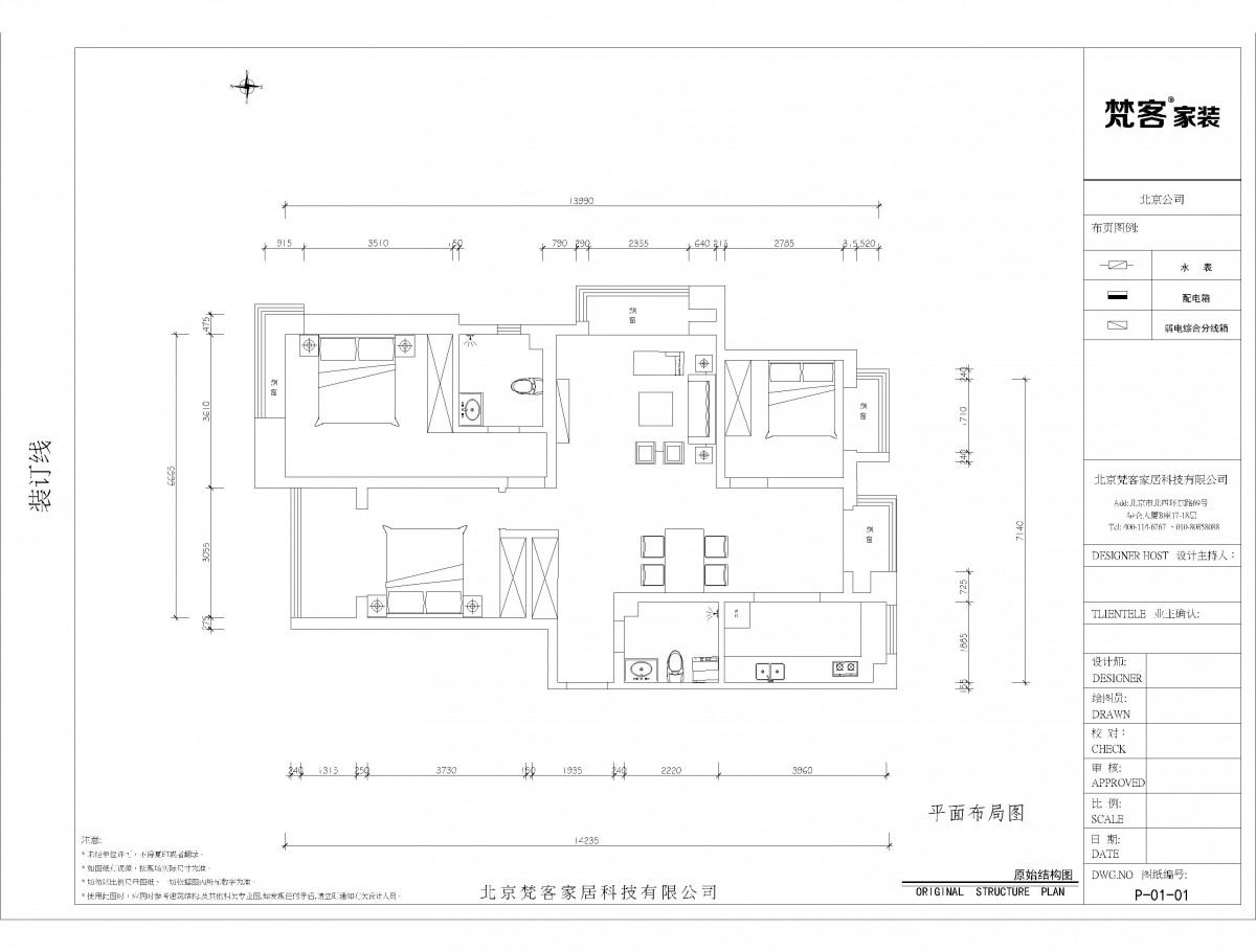
映月公馆126㎡日式

设计师-王文静

预约TA点赞 0 个赞
  • 所在小区:映月公馆

    装修风格:现代简约

  • 建筑面积:126平米

    装修造价:14万

  • 户型:三室

    关注:143次浏览

  • 点赞 0 个赞

设计说明

 传统日式风格是一种设计风格,传统的日式家居将自然界的材质大量运用于居室的装修、装饰中,不推崇豪华奢侈、金碧辉煌,以淡雅节制、深邃禅意为境界,重视实际功能。日式风格特别能与大自然融为一体,借用外在自然景色,为室内带来无限生机,选用材料上也特别注重自然质感,以便与大自然亲切交流,其乐融融。
 
停止播放
  • 传统的日式家具以其清新自然、简洁的独特品味,形成了独特的家具风格,对于活在都市森林中的我们来说,日式家居环境所营造的闲适、悠然自得的生活境界,也许就是我们所追求的。
  • 简介:
  • 米色+白色的色彩搭配:新派日式风格家居以简约为主,日式家居中强调的是自然色彩的沉静和造型线条的简洁,和室的门窗大多简洁透光,家具低矮且不多,给人以宽敞明亮的感觉。
  • 日式设计风格直接受日本和式建筑影响,讲究空间的流动与分隔,流动则为一室,分隔则分几个功能空间,空间中总能让人静静地思考。
  • 日式家居装修中,榻榻米,半透明樟子纸,以及天井,贯穿在整个房间的设计布局中,而天然质材是日式装修中最具特点的部分。
传统的日式家具以其清新自然、简洁的独特品味,形成了独特的家具风格,对于活在都市森林中的我们来说,日式家居环境所营造的闲适、悠然自得的生活境界,也许就是我们所追求的。			
简介: 米色+白色的色彩搭配:新派日式风格家居以简约为主,日式家居中强调的是自然色彩的沉静和造型线条的简洁,和室的门窗大多简洁透光,家具低矮且不多,给人以宽敞明亮的感觉。			
日式设计风格直接受日本和式建筑影响,讲究空间的流动与分隔,流动则为一室,分隔则分几个功能空间,空间中总能让人静静地思考。			
日式家居装修中,榻榻米,半透明樟子纸,以及天井,贯穿在整个房间的设计布局中,而天然质材是日式装修中最具特点的部分。
环保不达标全负责
环保不达标全负责
售后10次回访
售后10次回访
5+1电话模式
5+1电话模式
一站式·30分钟回复
一站式30分钟回复
Copyright © 烟台鸿图装饰公司 All rights reserved.            备案号:鲁ICP备17005650号            网站制作烟台智联网络公司 
Copyright © 烟台鸿图装饰公司
免费申请