服务热线:
0535-2110430

烟台
切换城市

热门城市

导航
返回顶部
返回顶部
狂欢再起 “4”不可挡
当前位置:首页 > 新闻动态

又酷又随和的家居装修——105㎡工业风拿走,不谢!

 发布时间:2019-03-22     浏览量:119     分享到:
文章
导读
  酷,有点高冷,活泼,让人随和,两个看似不能相交的两个词,却因为一个有主见的业主而交集,偏爱工业风的他在装修上坚持了自
热门标签: 最新动态
   酷,有点高冷,活泼,让人随和,两个看似不能相交的两个词,却因为一个有主见的业主而交集,偏爱工业风的他在装修上坚持了自己的酷,却也不忘跟设计师提出“想要活泼一点”的要求。
 
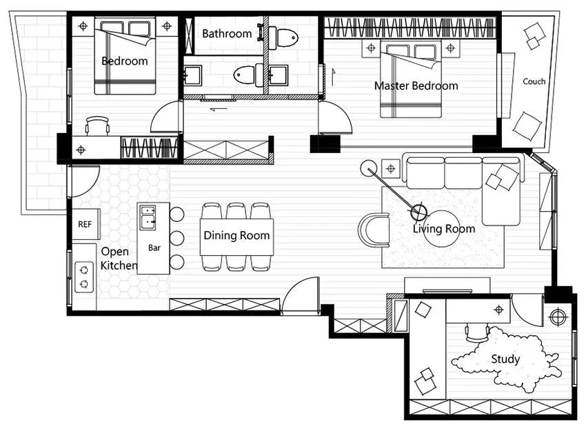
  平面图
 
面积:105㎡

风格:工业风

户型:两居
 
  玄关
 

 
  左边的原木风鞋架搭配红砖墙,精致与粗犷并存。右边的红色收纳柜则点亮了整个空间,达到了屋主想要的活泼效果。
 
  客厅
 
  暖色调的客厅则让时光流转,回到过去,复古的斑驳墙面,复古感浑然天成。
 
  咖色的皮质沙发与电视背景墙相呼应,整个空间温暖明亮。
 
  灯具、铁质茶几与沙发背后的黑边玻璃隔断则增强了硬朗感,凸显了屋主的个性。
 
  餐厅和厨房
 
  为了改善采光问题,设计师将非承重墙拆除,改造成现在的开放式餐厨,打通了厨、餐、客三个空间,同时增加了吊灯的数量。
 
  考虑到屋主平时很少在家下厨的情况,厨房的设置较为简单,中岛吧台成为黑白厨房的主角,承担起操作台、休息区以及部分收纳区的任务。
 
  餐厅的墨绿色墙绘更是让人挪不开眼!考虑到屋主想要活泼的效果,设计师选择了黑板漆搭配手绘,增强了整个厨餐厅的艺术感,它的背面也是一个半开放式的收纳柜。
 
  卧室
 
  玻璃隔断门后面就是卧室,和客厅的复古墙相对应,床背后设置了木纹壁纸装饰的移动床头板,既是靠板也是衣柜的门板,一举多得,好看又实用。
 
  卧室的阳台经过改造,变身为休息区,选择了和客厅同款的百叶窗帘。
 
  卫生间
 
  主卫与卧室之间选择了时下流行的谷仓门来做隔断,轻巧美观。
 
  卫生间的设计较为简洁,主色调为原木色和灰白色。主次卫都选择了明亮饱满的白色面包瓷砖和手绘风的花砖来装饰墙面,大方之中又带着活泼的元素。
环保不达标全负责
环保不达标全负责
售后10次回访
售后10次回访
5+1电话模式
5+1电话模式
一站式·30分钟回复
一站式30分钟回复
Copyright © 烟台鸿图装饰公司 All rights reserved.            备案号:鲁ICP备17005650号            网站制作烟台智联网络公司 
Copyright © 烟台鸿图装饰公司
免费申请