服务热线:
0535-2110430

烟台
切换城市

热门城市

导航
返回顶部
返回顶部
狂欢再起 “4”不可挡
当前位置:首页 > 新闻动态

“别人家”的日式装修,只要喜欢,你也可以拥有!

 发布时间:2019-04-09     浏览量:56     分享到:
文章
导读
  家,是人生的第一道场,面对当下种种形式主义的华而不实。实用主义的户型设计越来越受到了大家的关注,日式风格注重实用性同
   家,是人生的第一道场,面对当下种种“形式主义”的华而不实。“实用主义”的户型设计越来越受到了大家的关注,日式风格注重实用性同时也追求简单深受大家的追捧
 
  今天分享的是一套小三房,套内实际面积为83个平方,整体风格为日式风,通过暖色调的原木色来构造这样一个温馨、舒适的小窝,让人感觉非常的舒服。
 
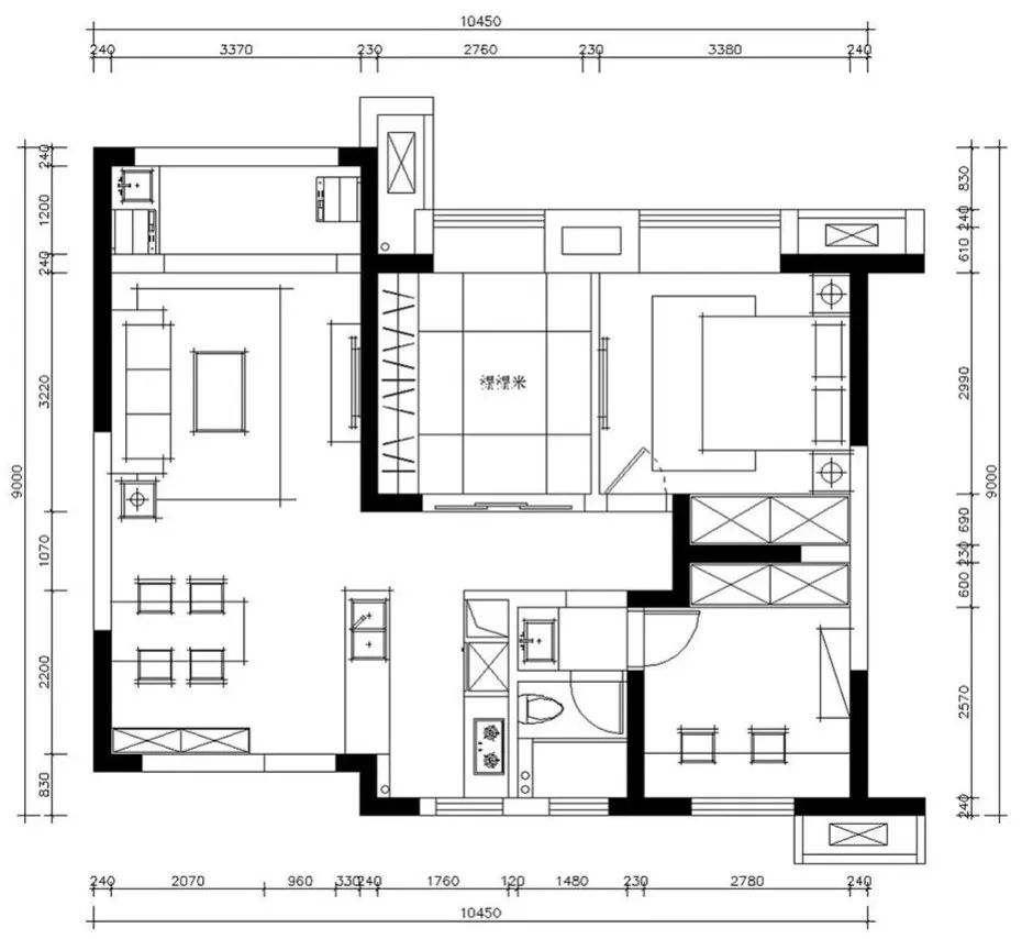
  平面布置图
 

 
  入户没有玄关的户型,靠着餐厅的墙面做了到顶的鞋柜,中间和底部的留空区域方便屋主的日常使用。
 

 
  木色餐桌椅,两把椅子与长条形的板凳,简洁而又实用,在白色的灯光下,也散发着质朴的感觉。
 

 
  位于餐厅边上的开放式厨房,延伸的吧台和橱柜的中间的墙角设计了隔板,用来摆放绿植和厨房用品,非常的实用。
 

 
  在灯光照耀下的客餐厅,让人感觉非常的温馨、舒适。很喜欢这款沙发,让人感觉简单而又舒服。
 

 
  整个客厅的空间都不大,电视背景墙和沙发背景墙上都没有做任何装饰,收纳款的电视柜满足客厅的储物需求。
 

 
  客厅外的阳台设计非常实用洗手台、洗衣机和烘干机结合,再加上阳台内外都装了纱帘,非常唯美的一个空间。
 

 
  看着主卧室床头那一盏暖色的吊灯,即使带有浮躁的心在这样的环境下也会让人快速安静,立刻调整到最佳的睡眠状态。
 

 
  次卧所有的空间都用来改成了榻榻米,加上嵌入式的衣柜,这个空间的收纳能力非常强。推拉的障子门也有很日式风范。
 

 
  洗手台被放在了门外,日常的使用就会方便许多。镜子四周的框架刚好可以用来摆放洗漱用品,非常实用。

环保不达标全负责
环保不达标全负责
售后10次回访
售后10次回访
5+1电话模式
5+1电话模式
一站式·30分钟回复
一站式30分钟回复
Copyright © 烟台鸿图装饰公司 All rights reserved.            备案号:鲁ICP备17005650号            网站制作烟台智联网络公司 
Copyright © 烟台鸿图装饰公司
免费申请