服务热线:
0535-2110430

烟台
切换城市

热门城市

导航
返回顶部
返回顶部
狂欢再起 “4”不可挡
当前位置:首页 > 新闻动态

70平米的小户型装修根本不用愁,清爽舒适最重要啦

 发布时间:2019-04-19     浏览量:72     分享到:
文章
导读
  小户型装修根本不用发愁,参考这些超棒的案例,一定能找到适合自己的灵感。今天分享70平米的装修,清爽、舒适是关键。  户
   小户型装修根本不用发愁,参考这些超棒的案例,一定能找到适合自己的灵感。今天分享70平米的装修,清爽、舒适是关键。
 
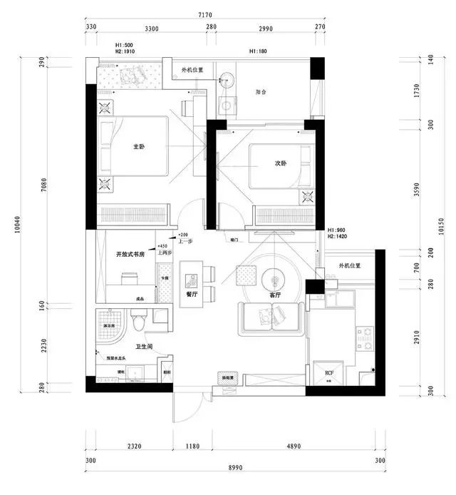
  户型图
 
  鞋柜
 
  没有专门的玄关,在入户之后的墙面与沙发之间做了一个到顶的满墙的收纳柜。中间做空,可以摆放一些装饰物,或随手放置的东西。
 
  客厅
 
  我们还可以看到,在门的左侧还有一个小的鞋柜,可以收纳入门的鞋子。
 
  客厅
 
  客厅不算宽敞,采光也不算好。加入吊灯、射灯,整体光感就很棒了。而且整体是浅色调,就更显得温馨舒适。
 
  餐厅
 
  餐厅设计了卡座,好处是座底还能收纳。小巧的餐桌椅,也很好用。餐厅区靠着书房,书房设计成榻榻米风格的,能看书、办公和休息,实用方便。
 
  厨房
 
  厨房整体设计成白色的,明亮大方,地砖为灰色,方便清洁。
 
  主卧
 
  主卧的筒灯光线,让空间更具层次感。整体颜色搭配明亮简单,家具和地板颜色整体一致,简单舒适。
 
  儿童房
 
  儿童房浅色调,床品卡通的非常明亮活泼。阳台的吊椅设计,增添趣味性。
 
  阳台
 
  阳台打造成生活阳台,一侧有洗衣机洗手台和吊柜。另一侧就是休闲区,有吊椅可以休息。
 
  卫浴室
 
  洗手台延伸至另一侧墙面,白色的非常清爽大方。旁边是拖把池,方便搞清洁。玻璃材质的门做好洗浴室和外边的干湿分离。
环保不达标全负责
环保不达标全负责
售后10次回访
售后10次回访
5+1电话模式
5+1电话模式
一站式·30分钟回复
一站式30分钟回复
Copyright © 烟台鸿图装饰公司 All rights reserved.            备案号:鲁ICP备17005650号            网站制作烟台智联网络公司 
Copyright © 烟台鸿图装饰公司
免费申请