服务热线:
0535-2110430

烟台
切换城市

热门城市

导航
返回顶部
返回顶部
狂欢再起 “4”不可挡
当前位置:首页 > 新闻动态

现代简约风格装修效果,打造温馨而美好的生活小家

 发布时间:2019-04-20     浏览量:55     分享到:
文章
导读
  今天给大家分享的案例是一个现代简约风格。业主是一对年轻的情侣,作为他们的婚房让他们对装修的细节都充满了小心思。让每一
   今天给大家分享的案例是一个现代简约风格。业主是一对年轻的情侣,作为他们的婚房让他们对装修的细节都充满了小心思。让每一个细节的铺排,都呈现出令人感觉舒适的气氛,打造温馨而美好的生活小家。来跟着青岛鸿图装饰的小编一起来看看吧~

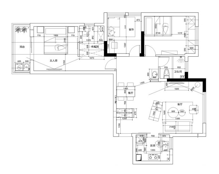
  平面图

  客厅
 

 
  ▲客厅整体选择了大尺寸的木质地板,大大提高了空间气质,沙发和茶几也选用了和地板相同原木色调的偏现代话的家具。沙发并没有选择贴墙而放,而是选择了留出给一个储物架的位置,选择放了书和绿植,温馨的感觉在这些小细节体现的淋漓尽致。

 
  电视背景墙


 
  ▲业主并没有选择过于花哨的电视背景墙,而是选用了原来的白色墙面来配合木质电视柜和立柜。业主很喜欢日式那种原木的感觉所以整体的木制家具让这一角也添加了点日式的感觉。
 
  餐厅
 


 
  ▲不知道大家有没有注意到餐边柜上放了一台微波炉呢?这是业主考虑到工作回家太晚而选择放置在餐厅边上。餐边柜的储物功能也满足了业主的需要。全实木长方形餐桌椅靠墙摆放,扩大了过道的面积,使动线更加流畅,整个餐厅的布置安宁、简适,让人在就餐中感受轻松和愉快。
 
  厨房
 


 
  ▲黄色谷仓门十分抢眼,推开后即是厨房。厨房整体选用了白色的小方砖很符合北欧简约的感觉,而白色的橱柜和吊柜让整个厨房更加的干净整洁,业主选用了多宜家风的储物架,节省空间的同时更增加了空间使用的层次感。
 
  主卧
 

 
  ▲主卧背景墙选用了浅灰色让这个居住空间更加沉稳温馨,而床头灯的设计又不会显的背景色太深。右侧的主卧卫生间被改造成了业主的衣帽间,完全满足了女主人的小私心呢。主卧简洁中也有细节,萤火虫吊灯点亮后很有艺术气息,墙壁上两幅绿色植物装饰画带来清新与活力。
 
  儿童房
 

 
  ▲儿童房,绿色墙面和红色抱枕形成对比,让房间更加活泼有朝气。书桌椅选择了靠窗而放,同时在两侧又留下了充足的空间来进行辅导,充满细节的体现。
 
  卫生间
 

 
  ▲卫生间干湿分离布局合理,洗漱空间独立出来,能使得实用功能加强。业主并没有选择浴柜而是选择了放了两个脏衣栏,方便清理的同时还能清楚看出所防止的物品不会再找不到东西啦。

好了,今天的案例就分享到这里了。想让你的家也变的更美那就点击在线报名免费量房哦~青岛鸿图一直都在为你的家助力!

环保不达标全负责
环保不达标全负责
售后10次回访
售后10次回访
5+1电话模式
5+1电话模式
一站式·30分钟回复
一站式30分钟回复
Copyright © 烟台鸿图装饰公司 All rights reserved.            备案号:鲁ICP备17005650号            网站制作烟台智联网络公司 
Copyright © 烟台鸿图装饰公司
免费申请