发布时间:2019-05-02
浏览量:111
分享到:
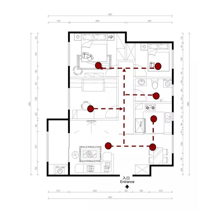
本案动静分区区分明显,入户客餐厅左右分布,方便起居。小卧室改为榻榻米房间,空间合理利用,增加储物空间,厨房采用开敞式厨房。出入方面,空间通透。

本案访客流线简单通顺,入户区域既是整个房子的动区,涵盖了客人来访主要的空间。与主人休息区域无重叠。互不干扰。

本案起居流线,由房子中间过道作为主线,贯穿中间,各区域左右分布,房主一家人生活中的饮食起居,各种活动无阻隔,动静区域分布相对合理。
效果图赏析

▲深色的家具沉静低调,背景墙的亮色线条与其相呼应,同时,家具简洁利落的线条让客厅看上去非常简洁,没有过多的装饰品,却让人感觉内涵丰富,达到了以少胜多、以简胜繁的效果。

▲主卧同样延续客厅的整体风格,安静而沉稳,白色床品与背景墙上的装饰画相互映衬,稳重中又带有一丝轻松惬意,窗帘选择了与家具相近的色系,整体和谐而统一。

▲美式装修风格样板房的次卧年轻时尚,背景墙涂刷淡蓝色的乳胶漆,与白色床品搭配,给人一种蓝天白云的即视感,在这样的卧室入睡,一定是自由自在,舒适惬意的。

▲设计师将小卧室改成榻榻米书房,可以充当书房,亦可以做临时客卧,书桌、置物隔板和护墙板融合,自然简约,摆放一些饰品,朴素中不乏趣味性。

▲开放式厨房符合随意不羁的生活方式,米白色的橱柜与灰色墙砖相辅相成,共同营造了一个大气简约的厨房空间,让烹饪变成一件美好温暖的事。




