服务热线:
0535-2110430

烟台
切换城市

热门城市

导航
返回顶部
返回顶部
狂欢再起 “4”不可挡
当前位置:首页 > 新闻动态

青岛鸿图装饰:泰晤士小镇110㎡洋楼变身现代简约高级灰

 发布时间:2019-05-04     浏览量:77     分享到:
文章
导读
  今天给大家推荐的是一套110㎡的小洋楼,设计师利用了高级的灰色打造出简约风格的时尚大气。由曲线和非对称线条构成,如花梗
   今天给大家推荐的是一套110㎡的小洋楼,设计师利用了高级的灰色打造出简约风格的时尚大气。由曲线和非对称线条构成,如花梗、花蕾、葡萄藤、昆虫翅膀以及自然界各种优美、波状的形体图案等,体现再墙面、栏杆、窗棂和家具等装饰上。线条有的柔美雅致,有的遒劲而富于节奏感,整个立体形式都与有条不紊的、有节奏的曲线融为一体。大量使用铁制构件,将玻璃、瓷砖等新工艺,以及铁艺制品、陶艺制品等综合运用于室内。注意室内外沟通,竭力给室内装饰艺术引入新意,以及整体风格简约大气。青岛装修公司的小编实在是太喜欢这套设计了!

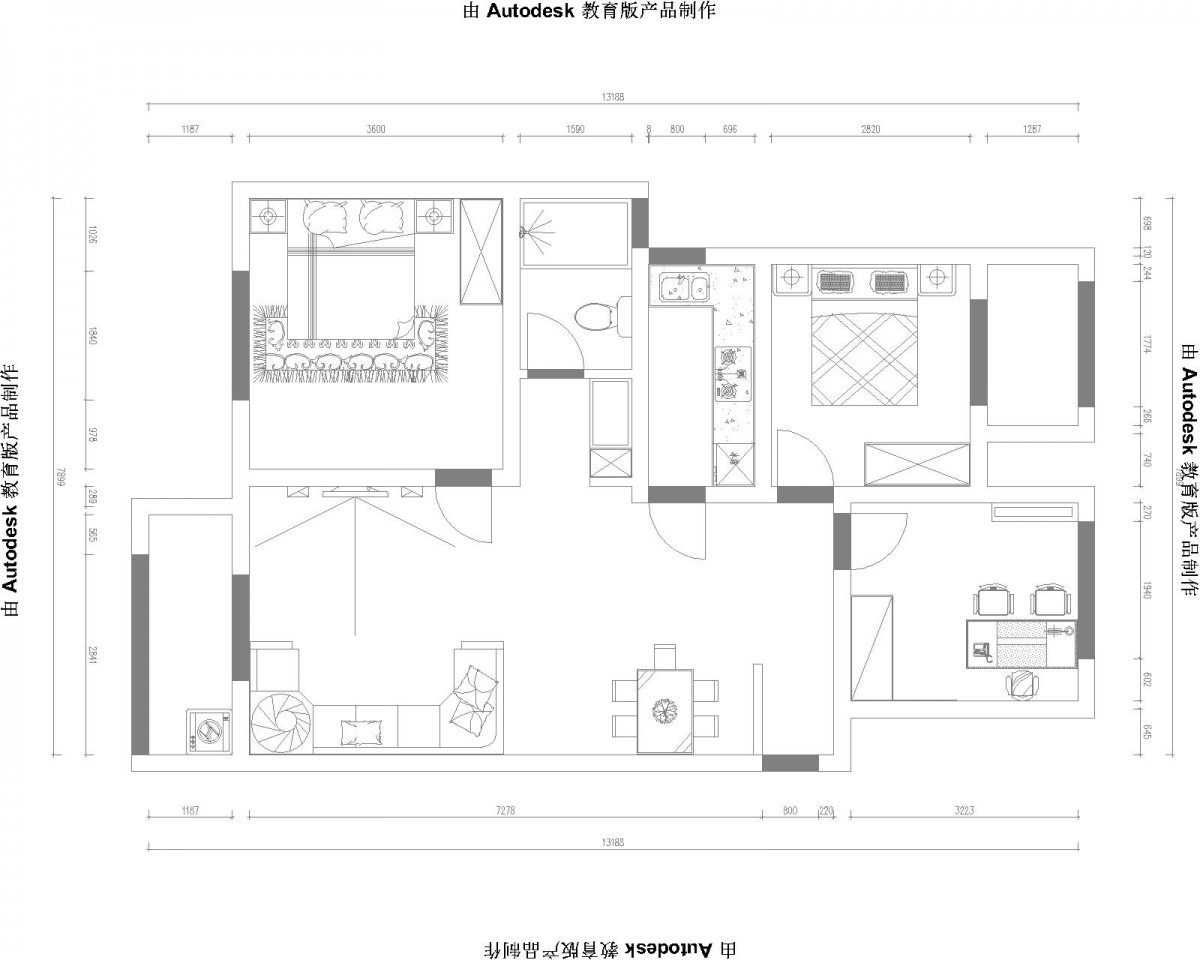
平面设计图



 
  客厅


客厅的户型方正,采光、通风都非常好。色调选择了以白色和灰色为主,搭配黑色背景墙,让整个空间更加丰富和层次感。地面采用白灰相间的地砖用一些彩色搭配呈现出简约大气的风格。电视柜选择了和以往不同柜体而是选择了大理石作为一个阶梯式的台阶,用于盛放各种装饰物的地方刚刚好。
 
  厨房


厨房因为的户型原因选择做了的闭门式厨房,用人造石(石英石)来做一个台面把冰箱做成了嵌入式节省厨房的空间。以白色为主,橱柜的颜色用的实木色,让空间的层次感更加丰富也保证了简约的风格。两种颜色的搭配也保证了不让您会视觉疲劳,白色大理石搭配枣红实木色的橱柜庄重又大气。
 
  卧室


 
  卧室整体背景色以灰色为主,白色作为点缀。灰木色的地板让整个卧室空间变得更加深沉,温馨的感觉一跃而上。床品则选择了亮色作为点亮整个卧室空间的颜色。床头柜和电视柜统一,深色木质柜搭配金属低调又奢华。
 
  卫生间


 
  卫生间我们是用灰色的地砖和墙砖作为基础,搭配木色的浴室柜来保证空间层次感也符合简约的风格。灰色背景搭配白色洁具显得简洁又大方。
 
环保不达标全负责
环保不达标全负责
售后10次回访
售后10次回访
5+1电话模式
5+1电话模式
一站式·30分钟回复
一站式30分钟回复
Copyright © 烟台鸿图装饰公司 All rights reserved.            备案号:鲁ICP备17005650号            网站制作烟台智联网络公司 
Copyright © 烟台鸿图装饰公司
免费申请