服务热线:
0535-2110430

烟台
切换城市

热门城市

导航
返回顶部
返回顶部
狂欢再起 “4”不可挡
当前位置:首页 > 新闻动态

102㎡现代轻奢风 刚好变成你喜欢的模样

 发布时间:2019-05-08     浏览量:46     分享到:
文章
导读
  返璞归真,恰到好处的精致!追求轻奢生活的人,更多的是在享受生活的乐趣。如今,这种轻奢的理念也更深入于居住中,轻奢美感
热门标签: 青岛装饰
   返璞归真,恰到好处的精致!追求轻奢生活的人,更多的是在享受生活的乐趣。如今,这种轻奢的理念也更深入于居住中,轻奢美感的住宅越来越被大众所接受并追捧。
 
  今天鸿图装饰给大家分享的是一套102㎡的现代轻奢风格的装修案例,三室两厅的户型让设计师更有了发挥想法的余地,业主也是一位懂得生活的年轻男士,装修的时候选择了很有质感的和比较舒适的软硬装结合,实现了轻奢的感觉。让整个空间都更加的舒适,业主对于鸿图的设计师也是赞不绝口。
 
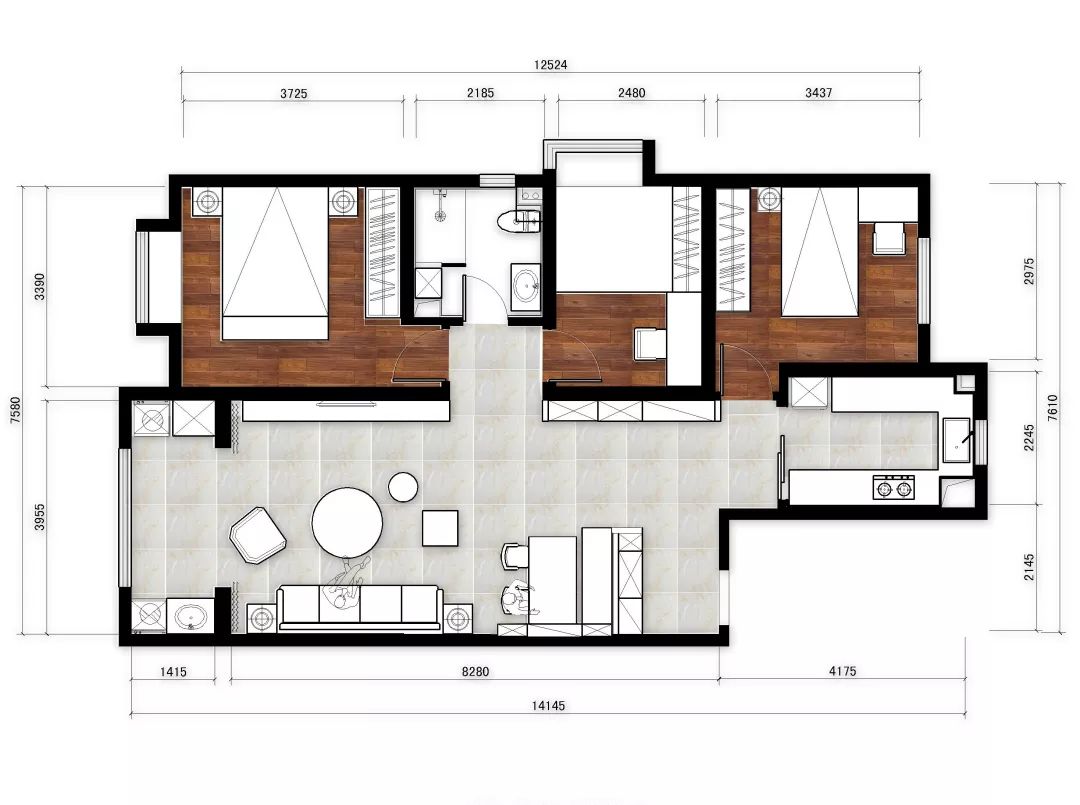
  平面布局图
 
青岛装饰
  玄关

青岛装饰
 
  玄关走廊选择了做到顶的鞋柜,中间和底部的留空设计方便换鞋和放鞋,底部的藏光也让整个玄关低调奢华。中间换鞋凳的设计更加的方便使用。另一侧墙面选择了穿衣镜作为主体,平常也是非常实用。
 
  餐厅
 

 
  客餐厅位于玄关鞋柜的后方,整体地面铺设了灰色的瓷砖,在暖色灯光的照耀下让整个客餐厅都变得非常温馨,而瓷砖的选择也是符合了轻奢主义的风格。
 

 
  鞋柜作为入户的隔断,设计师选择了在鞋柜背后作为餐厅的位置,选择了卡座式的餐厅,舒适的同时又让整个空间变得很有格调。墙面留空部分正好作为装饰画的存放位置。复古的木质家具更突出了整个餐厅的格调。
 
  客厅
 
青岛装饰
 
  客厅的沙发背景墙上选择了金属边作装饰,皮质的软包搭配金属边装饰的客厅是不是看起来更加奢华呢?蓝白波浪形的地毯让整个空间灵动感十足。藏蓝色的布艺沙发在灯光的照耀下质感十足。
 

 
  电视背景墙和沙发背景墙做了相同的设计,底部电视柜选择了中空设计,物品的存放一眼就可以看清楚。侧面设计师做了一个壁炉和大理石墙面结合的设计,整体造型看起来更加的大气又充满时尚感。
 
  厨房
 

 
  厨房和客厅同样是选择了灰色大理石瓷砖的设计,整体一致感更强烈。U型的厨房是所有人都喜欢厨房设计,今天的这个业主也不例外。U型设计让厨房动线更加合理,设计师吧所有的电器都选择藏入柜子里,布局更加合理,看起来空间布局也更加宽阔,整体也更加整洁大方。
 
  主卧
 

 
  主卧室的床头柜和床头靠背结合在了一起,在后方还加上了藏光的设计,以暖灰色和白色、黑色搭配起来,看起来就很有档次。
 
  次卧
 

 
  次卧业主选择让设计师做成榻榻米的设计,设计师在中间还加入了升降台,平时和朋友喝茶休息都是非常好的存在。衣柜和书桌相结合,让整个空间使用性更强烈。次卧就整体变成了休闲娱乐的区域。
 
  卫生间
 

 
  卫生间内部的空间比较宽敞,设计师也做了干湿分离。黑色边框的淋浴房加黑色的五金件,与浅色的墙地面刚好形成对比,整体变得更为耐看。http://www.qdhont100.com/
环保不达标全负责
环保不达标全负责
售后10次回访
售后10次回访
5+1电话模式
5+1电话模式
一站式·30分钟回复
一站式30分钟回复
Copyright © 烟台鸿图装饰公司 All rights reserved.            备案号:鲁ICP备17005650号            网站制作烟台智联网络公司 
Copyright © 烟台鸿图装饰公司
免费申请