后现代装修风格是比较流行的一种风格,追求时尚与潮流,非常注重居室空间的布局与使用功能的完美结合。今日分享的这篇案例,则是后现代主义设计的最好体现。
案例赏析
项目名称:中广怡湾景
设计单位:青岛鸿图装饰
建筑面积:110平
设计师:张晗

装修风格:后现代简约风格
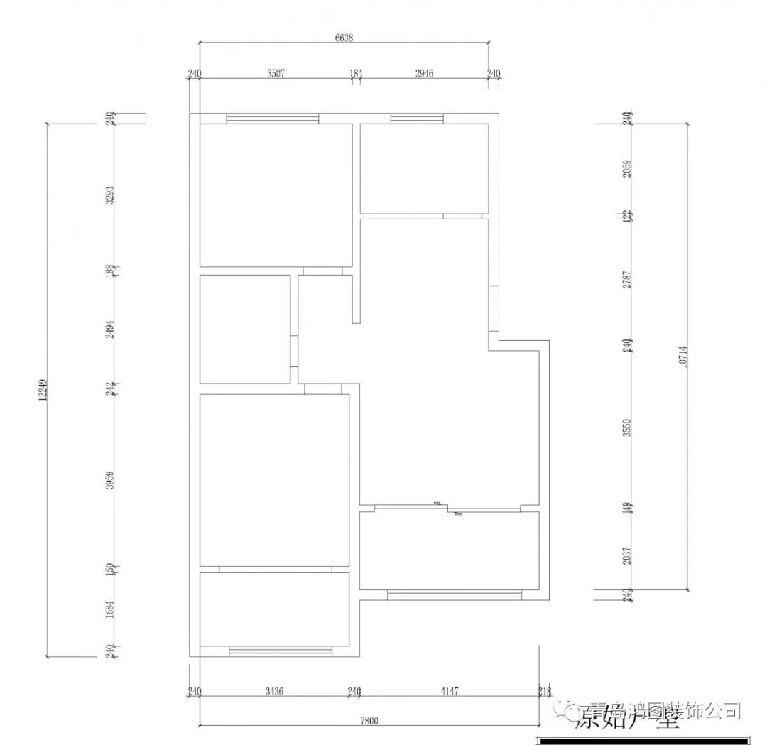
原始户型图
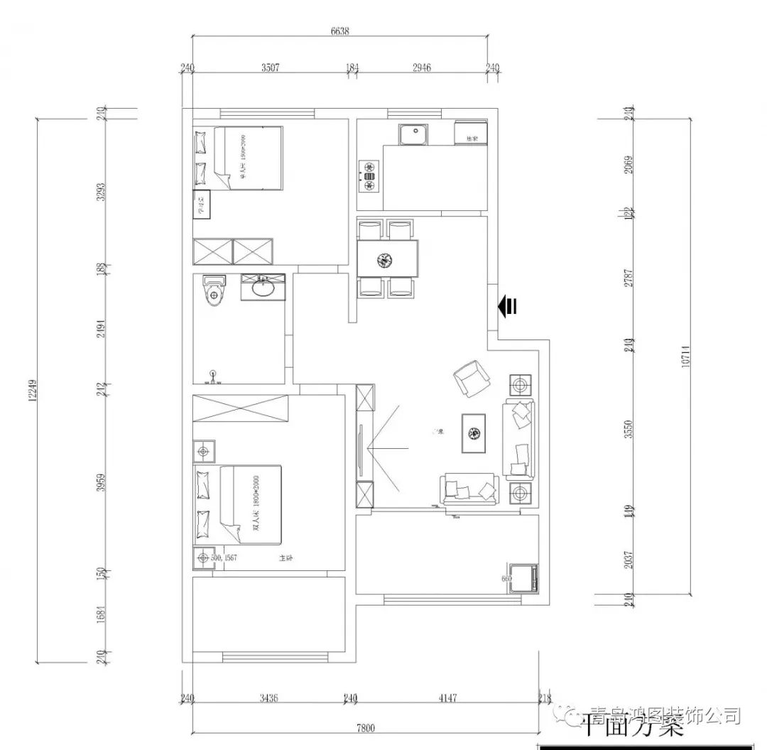
平面布局图
客厅
客厅空间,两面背景墙独具特色,蓝色沙发背景墙搭配纯白沙发和简约装饰画,干净清爽,而电视背景墙,素雅壁纸搭配黑色线条勾勒出一股优雅的气质,六边形格子地毯温馨跳跃,又丰富了空间层次,再用清新绿植点缀空间角落,给你满满的舒适享受。
卧室
卧室则是黑白灰的素雅搭配,纯白床品与黑色窗帘的经典组合,时尚不过时,动物装饰画可爱又有趣,搭配优雅吊灯,打造一个安静又沉稳的休息氛围。
书房
书房设计独特,在靠窗位置装上一个小床,在靠墙位置做一张书桌,让空间的整体感十分的强烈;不但工作休息分明,还可做客房,一房两用,让人十分惊喜。
厨房
U型橱柜布局,合理方便,黄色的墙砖搭配白色的橱柜,清爽又干练,一切让烹饪变的简单起来。