服务热线:
0535-2110430

烟台
切换城市

热门城市

导航
返回顶部
返回顶部
狂欢再起 “4”不可挡
当前位置:首页 > 新闻动态

【万达悦公馆】145平简欧风格,给你一个低调奢华有内涵的新居!

 发布时间:2019-05-17     浏览量:69     分享到:
文章
导读
  简欧风格就是简化了的欧式装修风格。也是目前住宅别墅装修最流行的风格。简欧风格更多的表现为实用性和多元化。万达悦公馆这
热门标签:
   简欧风格就是简化了的欧式装修风格。也是目前住宅别墅装修最流行的风格。简欧风格更多的表现为实用性和多元化。万达悦公馆这套简欧风格,就为您营造出不同的居家感受。
 

项目名称:万达悦公馆

设计单位:青岛鸿图装饰

建筑面积:145平

设计师:程希明



装修风格:简欧风格
 
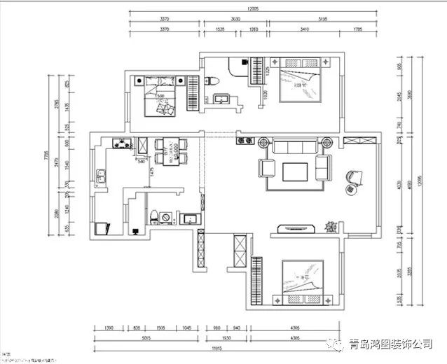
  平面布局图
 
  玄关
 

 
  入门玄关便是一套亮丽的风景,欧式壁挂镜搭配一组时尚的玄关柜,已让人赏心悦目,摆上干花与照片,便能让人驻足停留许久。
 
  客厅
 

 
  玄关一侧是客厅空间,蓝白色渲染出整个空间的基调,安静优雅又清新十足,一盏欧式流苏吊灯十分吸睛,整个空间均搭配金色线条点缀,轻奢又富有质感,再摆上鲜花,温馨大气十足。
 
  餐厅
 

 
  餐厅被安置于玄关的另一侧,黑色与银色的餐桌椅,显露出整个空间不凡的气质,搭配装饰画静谧又温暖,在餐边柜摆上红酒,空间品质瞬间爆棚。
 
  厨房
 

 
  L型厨房布局,加上整体浅色的橱柜,干净又清爽,让人爱上在这里的烹饪生活。
环保不达标全负责
环保不达标全负责
售后10次回访
售后10次回访
5+1电话模式
5+1电话模式
一站式·30分钟回复
一站式30分钟回复
Copyright © 烟台鸿图装饰公司 All rights reserved.            备案号:鲁ICP备17005650号            网站制作烟台智联网络公司 
Copyright © 烟台鸿图装饰公司
免费申请