服务热线:
0535-2110430

烟台
切换城市

热门城市

导航
返回顶部
返回顶部
狂欢再起 “4”不可挡
当前位置:首页 > 新闻动态

温馨典雅,简而不凡,【中海蓝庭】105平简约美式风,美得如此舒服

 发布时间:2019-05-26     浏览量:61     分享到:
文章
导读
这套105平的居室,整体十分宽敞别致,因为夫妻两人都喜欢美式,所以选择了简美风格,整体装饰效果温馨优雅,没有浓重的渲染,浮
热门标签: 装修案例
 这套105平的居室,整体十分宽敞别致,因为夫妻两人都喜欢美式,所以选择了简美风格,整体装饰效果温馨优雅,没有浓重的渲染,浮夸的“泼墨”。家里的每个角落,你会发现都搭配的刚刚好,舒适得让你宅在家不愿出门。
 
项目名称:中海蓝庭
设计单位:青岛鸿图装饰
建筑面积:105平
设计师:张晗
装修风格:简约美式风格
 
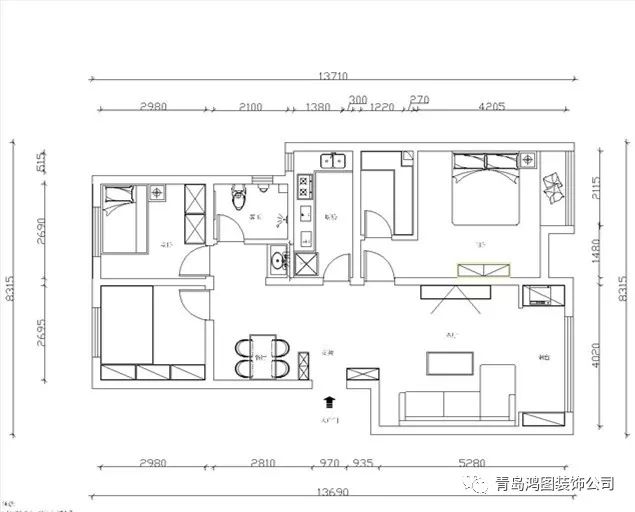
平面布局图
 
客厅
 
客厅空间简洁明快,每一处角落都充满质感,彰显屋主的生活品味。整体浅色的搭配素净优雅,再用色彩跳跃的抱枕做点缀,浓淡相宜,充满活力。客厅与阳台相连,让空间宽敞又明亮。
 
餐厅
 
木色餐桌椅,美式吊灯,尽显空间优雅格调,背景墙的创意陶瓷盘别具一格,搭配一面艺术壁挂镜,浓郁的美式风肆意的弥漫,这样的空间让吃饭成为了一种享受。
 
卧室
 
卧室空间,一张经典的美式双人床,几幅装饰画,一组美式桌椅,朴实又韵味十足,让人不自觉地就爱上它的舒适与温馨。
 
环保不达标全负责
环保不达标全负责
售后10次回访
售后10次回访
5+1电话模式
5+1电话模式
一站式·30分钟回复
一站式30分钟回复
Copyright © 烟台鸿图装饰公司 All rights reserved.            备案号:鲁ICP备17005650号            网站制作烟台智联网络公司 
Copyright © 烟台鸿图装饰公司
免费申请