服务热线:
0535-2110430

烟台
切换城市

热门城市

导航
返回顶部
返回顶部
狂欢再起 “4”不可挡
当前位置:首页 > 新闻动态

【岘山花城】110平轻奢风格,惊艳十足,演绎你的魅力生活!

 发布时间:2019-06-19     浏览量:63     分享到:
文章
导读
  生活可以有多种选择,空间也是一样的,不同的人对于不同的空间有不一样的诉求。在本案轻奢风格设计中,设计师将气质轻奢四个字
   生活可以有多种选择,空间也是一样的,不同的人对于不同的空间有不一样的诉求。在本案轻奢风格设计中,设计师将“气质轻奢”四个字阐述的淋漓尽致。
 
项目名称:岘山花城
设计单位:青岛鸿图装饰
建筑面积:110平
设计师:王煜
装修风格:轻奢风格
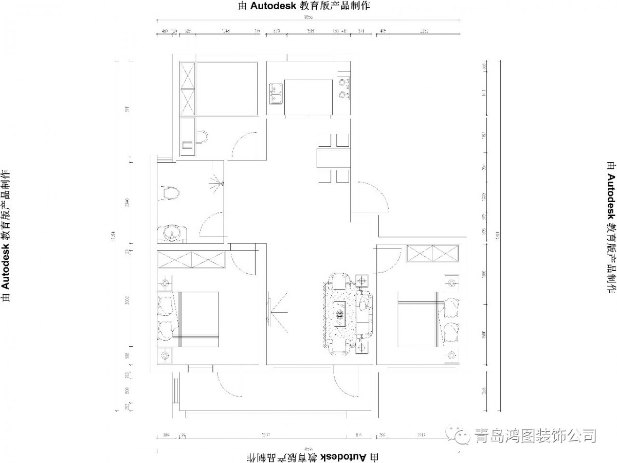
  平面布局图
 
  客厅
 
  客厅空间是满满的金属质感,浅色沙发与深色茶几的组合,搭配时尚吊灯,层次分明,时尚有气质,电视背景墙造型新颖别致,又契合主题,搭配轻奢质感的电视柜,使整个空间抛离烦恼,大气十足。
 
  餐厅
 
  独特的吊顶设计,巧妙地将客厅与餐厅划分,深色简约的餐桌椅,搭配时尚的钻石灯和挂画,便是一方悠闲又富有情调的用餐空间。
 
  主卧
 
  纯白的主卧空间,用黑色线条勾勒出整个空间的层次,搭配一幅悠远的装饰画,让你尽享这一方空间的温馨与舒适。
 
  次卧
 
  次卧空间以灰色为主调,搭配深蓝的床品,让人一天的疲惫一瞬间得到缓解,几幅简单的装饰画让空间格调满满,活力不单调。
 
  厨房
 
  U型厨房布局,方便实用,灰白的色调搭配,简约明亮,这样的厨房空间真是太让人羡慕了!
查看更多精品案例:http://www.qdhont100.com/casenew/show.php?itemid=267
环保不达标全负责
环保不达标全负责
售后10次回访
售后10次回访
5+1电话模式
5+1电话模式
一站式·30分钟回复
一站式30分钟回复
Copyright © 烟台鸿图装饰公司 All rights reserved.            备案号:鲁ICP备17005650号            网站制作烟台智联网络公司 
Copyright © 烟台鸿图装饰公司
免费申请