服务热线:
0535-2110430

烟台
切换城市

热门城市

导航
返回顶部
返回顶部
狂欢再起 “4”不可挡
当前位置:首页 > 新闻动态

超有趣的现代简约四房,把卧室都藏在了电视背景墙后面

 发布时间:2019-06-21     浏览量:95     分享到:
文章
导读
  今天分享的这套137平的四居室设计得非常的有趣,设计师通过一个隐形门把户型分成了两个部分,一个大横厅的客厅、餐厅和厨房
   今天分享的这套137平的四居室设计得非常的有趣,设计师通过一个隐形门把户型分成了两个部分,一个大横厅的客厅、餐厅和厨房,另外一侧就是四间卧室和卫生间,这样的布局也非常符合动静区的划分。
 
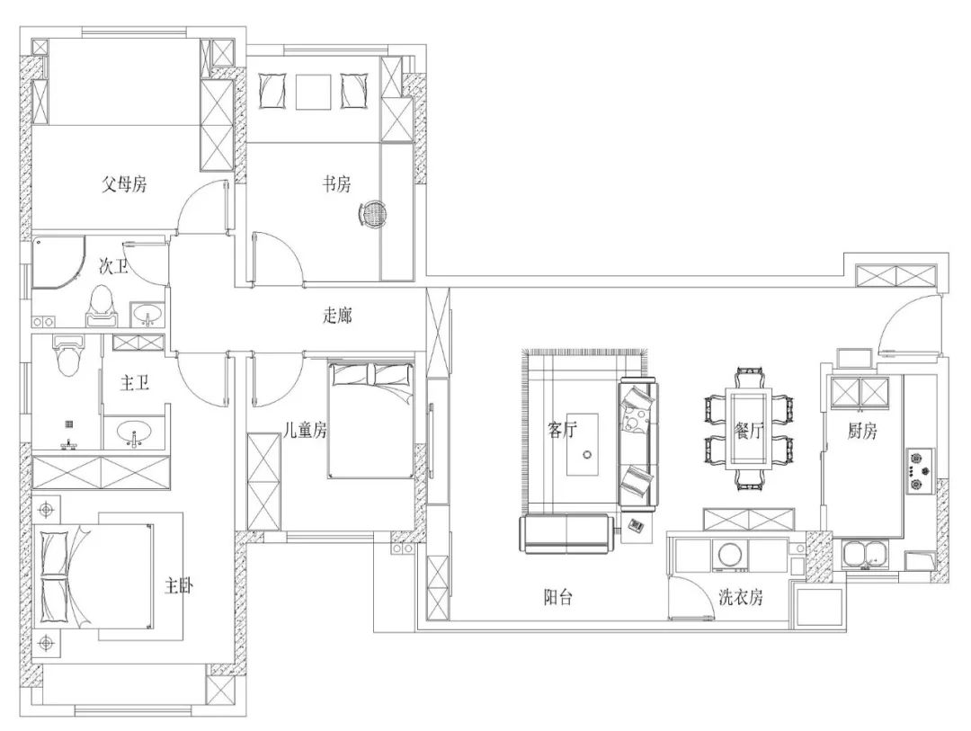
  平面布置图
 
  入户就是一个开放式的大横厅,客厅和餐厅之间没有做隔断,吊顶也是连在一起的设计,让人感觉非常宽敞、大气。
 
  餐厅的设计非常简约,深色的实木桌椅,搭配浅色系的背景墙和瓷盘装饰,在庄重中又展现出了优雅的感觉。
 
  餐厅的边上是被推拉门隔开的厨房,灰木色的橱柜,搭配白色墙面砖,显得很是独特自然的气息。
 
  客厅的电视背景墙设计非常有趣,左右两侧相互呼应,中间是开放式的收纳柜,电视也嵌入在了柜子中,深色系的选择让客厅多出了大气感。
 
  右侧的装饰其实是一扇隐形门,后方就是通往各个卧室和卫生间的走道。把隐形门的轨道藏在了吊顶当中,更有迷惑性。
 
  卧室的衣柜和床都是深色系的,和大气的床品也非常搭,而背景墙和飘窗、窗帘的软装又有小清新的感觉,搭配起来既庄重又时尚。
 
  儿童房空间简单的淡蓝色墙面,搭配上一套实用的上下铺,在狭小的空间装出了一个舒适居住功能。
 
  书房的空间还是比较宽敞的,在靠窗的位置做个榻榻米,就可以满足收纳,工作累了也能随时休息,到顶的大书柜让屋主再也不用担心家里东西放不下。
 
  干湿分离的卫生间,把马桶也放在了淋浴区内,这是很多比较小的卫生间的做法,毕竟马桶更不容易被水侵蚀、弄坏。
http://www.qdhont100.com/casenew/
环保不达标全负责
环保不达标全负责
售后10次回访
售后10次回访
5+1电话模式
5+1电话模式
一站式·30分钟回复
一站式30分钟回复
Copyright © 烟台鸿图装饰公司 All rights reserved.            备案号:鲁ICP备17005650号            网站制作烟台智联网络公司 
Copyright © 烟台鸿图装饰公司
免费申请