服务热线:
0535-2110430

烟台
切换城市

热门城市

导航
返回顶部
返回顶部
狂欢再起 “4”不可挡
当前位置:首页 > 新闻动态

一见钟情,【香山美墅】143平新中式风,演绎现代东方美学

 发布时间:2019-07-06     浏览量:65     分享到:
文章
导读
  很多人习惯性的将中式和新中式风格混肴,其实,二者之间区别还是很大的。如果说,中式是父母这一辈人的钟爱,那么新中式的存
   很多人习惯性的将中式和新中式风格混肴,其实,二者之间区别还是很大的。如果说,中式是父母这一辈人的钟爱,那么新中式的存在就是我们年轻人为了继承父母的想法又发展自己爱好的存在。因为新中式就是在中式的基础上添加与时代潮流相结合的东西,中式与新中式虽然只差一个字,但在形式和表现上都有推层出新的变化。
 
项目名称:香山美墅
设计单位:青岛鸿图装饰
建筑面积:143平
设计师:程希明
装修风格:新中式风格
 
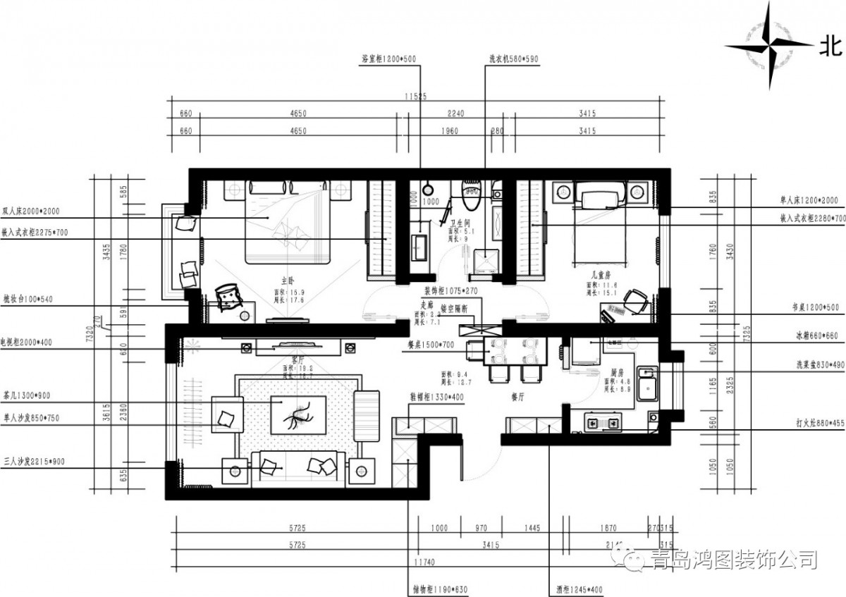
  平面布局图
 
  客厅
 
  客厅空间是一室的东方禅意,电视背景墙采用硅藻泥,美观又有质感,搭配浅色沙发和原木色家具,让整个空间端庄内敛,张弛有度,精致十足。
 
  餐厅
 
  餐厅低调简约,却内敛有力,新中式的餐桌椅搭配隔断式酒柜,便展现出空间不凡的气质,再点缀上鲜花,温馨又从容。
 
  卧室
 
  卧室空间整体搭配奢华不单调,温馨的吊灯,柔软的床品,简约的装饰画,便让空间舒适有度,再与朋友茶话一下人生,感受这方空间的岁月静好。
 
  书房
 
  书房是成面的嵌入式书柜,满足了居住者阅读的渴望,清新的地毯朴实自然,淡化了空间的严肃沉稳,轻盈有内涵。
查看更多案例:http://www.qdhont100.com/casenew/
环保不达标全负责
环保不达标全负责
售后10次回访
售后10次回访
5+1电话模式
5+1电话模式
一站式·30分钟回复
一站式30分钟回复
Copyright © 烟台鸿图装饰公司 All rights reserved.            备案号:鲁ICP备17005650号            网站制作烟台智联网络公司 
Copyright © 烟台鸿图装饰公司
免费申请