服务热线:
0535-2110430

烟台
切换城市

热门城市

导航
返回顶部
返回顶部
狂欢再起 “4”不可挡
当前位置:首页 > 新闻动态

中交中央公园美式风格装修设计,时光沉淀下的安静美人

 发布时间:2019-07-18     浏览量:87     分享到:
文章
导读
现在装修的大多数都是年轻人,而年轻人现在越来越喜欢复古的风格。中式对于我们来说过于沉重,而美式风格就成为我们的不二选择。
 现在装修的大多数都是年轻人,而年轻人现在越来越喜欢复古的风格。中式对于我们来说过于沉重,而美式风格就成为我们的不二选择。虽然美国是一个历史短暂的国家,但是在美式风格设计中,却极为注重其历史的内涵与文化的底蕴。不管是在其整体装修上,还是细节的处理上,都追求寻找一种古旧的文化感。在美式风格的软装上,常采用仿古艺术品作为点缀;而在地板的装修上,则常使用仿古墙地砖;总体的装修上,多采用石材和木饰。总体而言,美式风格设计对于仿古工艺的要求是比较精湛的。今天鸿图装饰的小编就给大家分享一组实景案例的美式风格装修效果图来给大家一饱眼福。

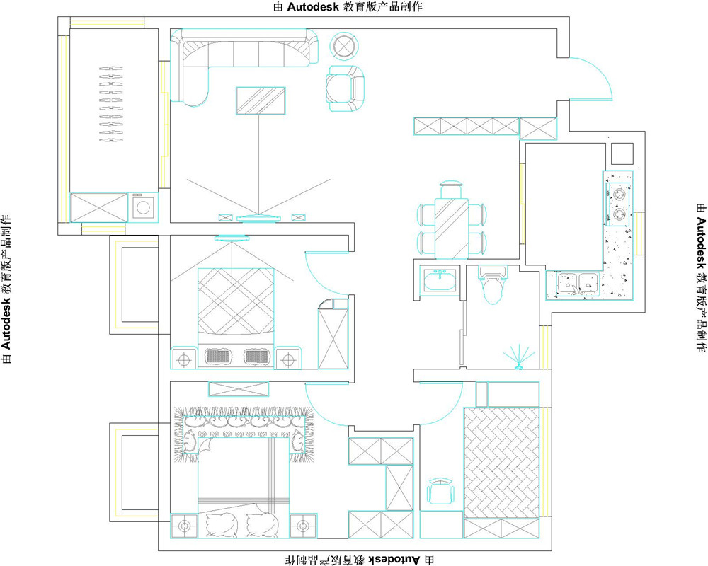
平面效果图

 
全房的路线设计师完美的让动区完美避开了静区,让静区不会被打扰,让生活更加舒适。



 
客厅风格较多采用嵌入式石膏吊顶,搭配精致的水晶吊顶,营造出一种怀旧、浪漫的感觉。以大理石作为地面装饰材料,光泽感佳,在沙发区铺上大幅花纹地毯,使空间区域划分更加清晰。复古造型的组合沙发,以及茶几都具有上乘的质感,让美式古典风格得以进一步的彰显。 
 

 
餐厅带有矩形图案的地砖,强调出餐厅空间的所属范围。粗犷、大气的美式餐桌椅,搭配复古造型的角几,让人迷失在时光隧道中

 
使用饰面板装饰背景墙,不容易与其他木质材料冲突,更好的形成统一的装修风格,清洁起来方便,如果觉得单调的话,可以挂上字画,这样效果更加完美。

 
卧室布置较为温馨,作为主人的私密空间,主要以功能性和实用舒适为考虑的重点,多用温馨柔软的成套布艺来装点,同时在软装和用色上统一。

色彩和整体色调一般来说现代美式厨房用色十分明亮,也有古典美式厨房喜欢用棕色咖啡等色调,也有用颜色混搭的色彩,打造的效果也各不相同,整体和谐有美感。

 
美式风格卫生间布局宜简单、利索。美式风格是显档次的一种风格,利用在卫生间中要以干净利落的面貌出现在居室空间中,过于杂乱的摆放并不能体现美式风格的美感。美式风格卫生间设计要做好干湿分离工作,如洗手台、浴缸、淋浴区、坐便器等物品要在使用方便、舒适的条件下,再做合理摆放。http://www.qdhont100.com/
环保不达标全负责
环保不达标全负责
售后10次回访
售后10次回访
5+1电话模式
5+1电话模式
一站式·30分钟回复
一站式30分钟回复
Copyright © 烟台鸿图装饰公司 All rights reserved.            备案号:鲁ICP备17005650号            网站制作烟台智联网络公司 
Copyright © 烟台鸿图装饰公司
免费申请