服务热线:
0535-2110430

烟台
切换城市

热门城市

导航
返回顶部
返回顶部
狂欢再起 “4”不可挡
当前位置:首页 > 新闻动态

【中南世纪城】146平日式风格,简约质朴的禅意之家

 发布时间:2019-08-03     浏览量:157     分享到:
文章
导读
日式风格,给人带来一种简洁舒适,宁静平和的状态。装饰上以精巧取胜,色调上以柔和雕饰,日式装修风格可以在平静中,带给人禅意
 日式风格,给人带来一种简洁舒适,宁静平和的状态。装饰上以精巧取胜,色调上以柔和雕饰,日式装修风格可以在平静中,带给人禅意的境界。
 
项目名称:中南世纪城
设计单位:青岛鸿图装饰
建筑面积:146平
设计师:王煜
装修风格:日式风格
 
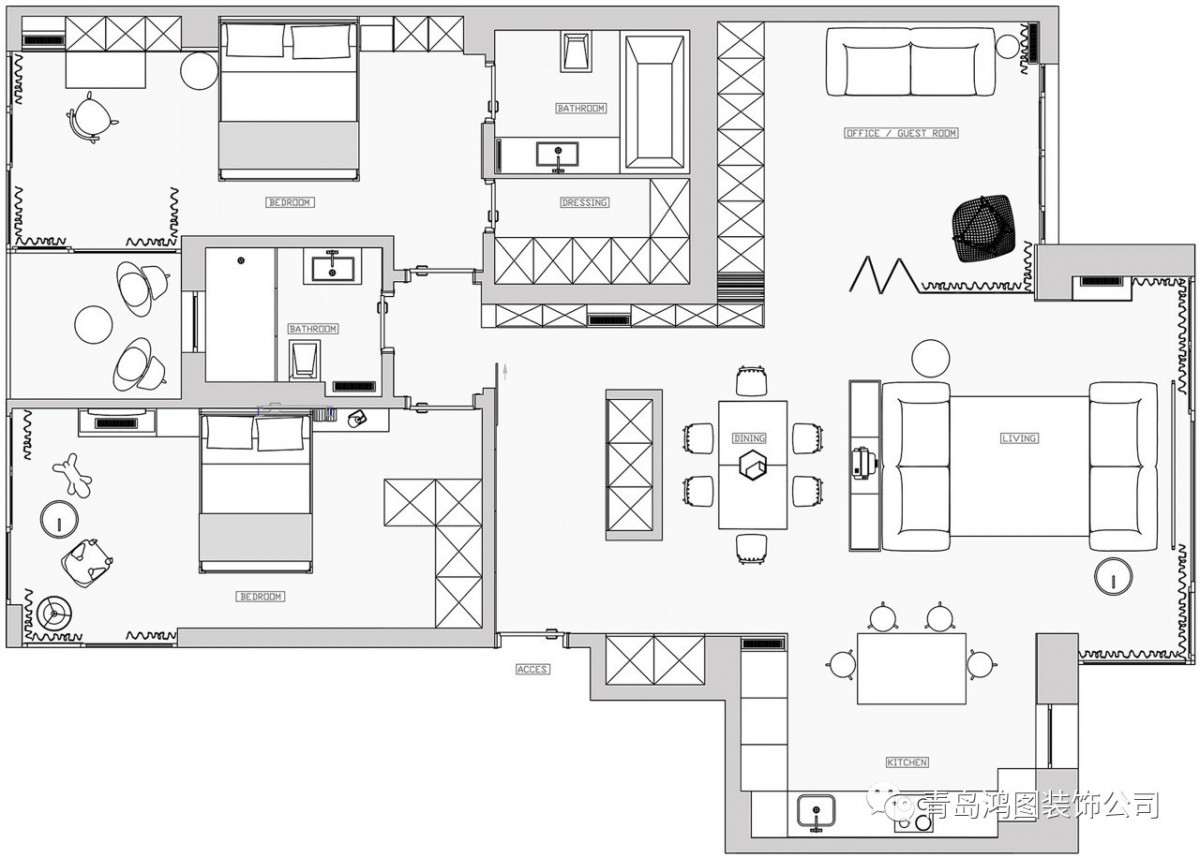
平面布局图
 
 
立体透视图
 
 
客厅
 
将自然界的材质大量运用于客厅的装修,不推崇豪华奢侈,以淡雅节制、深邃禅意为境界,重视实际功能。
 
灰色的布艺沙发,宽大的造型,非常舒适,使人们在工作繁忙中解脱出来。白色落地窗帘,在搭配浅灰色遮阳窗帘,淡雅的气息弥漫着整个空间。
 
厨房
 
开放式厨房高级感十足,烹饪用餐时,可以尽享与家人互动的乐趣。
 
一体壁橱,可收纳各种材料,让餐具、橱具摆放的井然有序,空间会看起来更宽敞,让厨房更干净、整洁,看着就很赏心悦目。
 
餐厅
 
餐厅与客厅之间以木质低柜作为分隔,有效分割了区域,却又保证了整体空间的通透。同时也可用于收纳及摆放物品,实用性十足。
 
木质餐桌搭配原木色的地板和深色幕墙,简洁、自然,既温馨,又散发着一种朴素的美感。
 
卧室
 
卧室光线很好,干干净净的屋子,带着些日式的素雅,看的我们眼前一亮。
 

 
浅灰色床品和整个屋子搭配的恰如其分再搭配上绿色植物,将自然之风吹满整个空间,清新自然。墙角处摆放了几款原木材质的书架,睡前来本书进行一场心灵的洗涤是再好不过的了。
环保不达标全负责
环保不达标全负责
售后10次回访
售后10次回访
5+1电话模式
5+1电话模式
一站式·30分钟回复
一站式30分钟回复
Copyright © 烟台鸿图装饰公司 All rights reserved.            备案号:鲁ICP备17005650号            网站制作烟台智联网络公司 
Copyright © 烟台鸿图装饰公司
免费申请