服务热线:
0535-2110430

烟台
切换城市

热门城市

导航
返回顶部
返回顶部
狂欢再起 “4”不可挡
当前位置:首页 > 新闻动态

【泰晤士小镇】98平混搭风,设计出轻盈的视觉效果

 发布时间:2019-08-10     浏览量:88     分享到:
文章
导读
混搭装饰风格是一种特异的表现形式,它可以摆脱沉闷,突出重点,符合了当今人们追求个性、随意的生活态度。但混搭不是百搭,不是
 “混搭”装饰风格是一种特异的表现形式,它可以摆脱沉闷,突出重点,符合了当今人们追求个性、随意的生活态度。但“混搭”不是百搭,不是人为地制造出一个“四不像“,而是为了达到1+1>2的效果。
 
 
案例赏析
项目名称:泰晤士小镇
设计单位:青岛鸿图装饰
建筑面积:89平
设计师:张晗
装修风格:混搭风
 
 
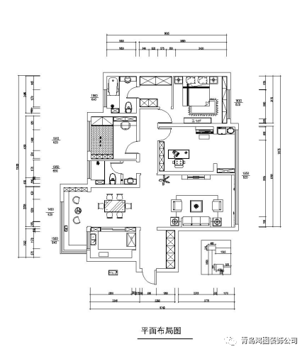
平面设计图
 
 
客厅
 

 
用石膏线装饰墙面,充满了立体线条感,与装饰画搭配,让整个客厅更生动立体,艺术感十足。
 

 
深色波打线与风格相迥的天花板很好的分割了客厅与餐厅两个区域,通明透亮,风格虽不同,但却莫名和谐统一。
 
 
餐厅
 

 
别出心裁的镜子墙,使餐厅看起来更为明亮通透,搭配复古吊灯,素洁轻盈的色线营造着浪漫的情趣,让华美的餐厅洋溢着娴静优美的气息。
 
 
主室
 
米色与香槟色主色调,以及优雅的线条,使整个卧室充满了欧洲宫廷色彩,散发出法式浪漫的完美与感性。
 
儿童房
 
榻榻米与书柜、衣柜组合设计,合理利用空间,增加物品储纳。灰蓝色窗帘营造良好的休息环境,搭配俏皮活泼的粉色蓝色床品,给宝宝创造清新轻盈的童年生活。
环保不达标全负责
环保不达标全负责
售后10次回访
售后10次回访
5+1电话模式
5+1电话模式
一站式·30分钟回复
一站式30分钟回复
Copyright © 烟台鸿图装饰公司 All rights reserved.            备案号:鲁ICP备17005650号            网站制作烟台智联网络公司 
Copyright © 烟台鸿图装饰公司
免费申请