服务热线:
0535-2110430

烟台
切换城市

热门城市

导航
返回顶部
返回顶部
狂欢再起 “4”不可挡
当前位置:首页 > 新闻动态

【卓越皇后道】88平现代风格,黑白黄诠释现代摩登

 发布时间:2019-08-17     浏览量:96     分享到:
文章
导读
  后现代装修风格是比较流行的一种风格,追求时尚与潮流,非常注重居室空间的布局与使用功能的完美结合。今天分享的案例就是使
热门标签: 青岛装修公司
   后现代装修风格是比较流行的一种风格,追求时尚与潮流,非常注重居室空间的布局与使用功能的完美结合。今天分享的案例就是使用黑白黄三色,诠释现代风格的摩登时尚,打造不一样的住宅体验。
 
  案例赏析
 
项目名称:卓越皇后道
设计单位:青岛鸿图装饰
建筑面积:88平
设计师:王煜
装修风格:现代风格
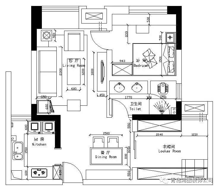
  平面布局图
 
  客厅
 
  黑白主色让空间显得开阔明亮不局促,黄色色块柔化黑白的冰冷,营造出家的生活感。黑白斑马纹地毯则与黑白格地砖巧妙搭配了起来,整体更和谐,强化空间的纹理和层次。
 
  电视背景的设计上摒弃虚华的图案与厚重的材质,用简单的石膏板搭配黑色线条,保留了质感,简约大方。
 
  餐厅
 
  客厅地毯与餐厅装饰画遥相呼应,定下空间的强调色,黄色餐椅则与客厅沙发色彩一致,强化空间整体的简洁特征,给人稳重的感觉。
 
  具有储物功能的榻榻米卡座实用性十足,搭配玲珑剔透的吊灯,如同置身西餐厅,为餐厅整体增加了另类个性的色彩。
 
  厨房
 
  厨房同样以黑白色为主色调,强调几何的秩序感与形式美,时尚立体。
 
  卧室
 
  卧室追求温馨感觉,所以减少了黑色的使用率,淡化了明黄,白、黑、原木黄的搭配现代简约又透着一小股子北欧风,冷暖适中。不会太繁杂,也不会太单调无聊。
 
  另外,将窗户包装起来,搭配组合柜,使原本简单的窗畔摇身一变成为书房一角,让办公阅读成为一件轻而易举的事。
环保不达标全负责
环保不达标全负责
售后10次回访
售后10次回访
5+1电话模式
5+1电话模式
一站式·30分钟回复
一站式30分钟回复
Copyright © 烟台鸿图装饰公司 All rights reserved.            备案号:鲁ICP备17005650号            网站制作烟台智联网络公司 
Copyright © 烟台鸿图装饰公司
免费申请