服务热线:
0535-2110430

烟台
切换城市

热门城市

导航
返回顶部
返回顶部
狂欢再起 “4”不可挡
当前位置:首页 > 新闻动态

【龙湖艳澜海岸】200平现代简约三居,围塑深邃精致住宅

 发布时间:2019-08-22     浏览量:64     分享到:
文章
导读
  现代简约风格在处理空间方面一般强调室内空间宽散、内外通透,不拘小节、没有约束,以最简洁明快的表现形式满足业主对空间环
热门标签: 青岛装修公司
   现代简约风格在处理空间方面一般强调室内空间宽散、内外通透,不拘小节、没有约束,以最简洁明快的表现形式满足业主对空间环境那种感性的、本能的和理性的需求.
 
  案例赏析
 
项目名称:龙湖艳澜海岸
设计单位:青岛鸿图装饰
建筑面积:200平
设计师:张晗
装修风格:现代简约
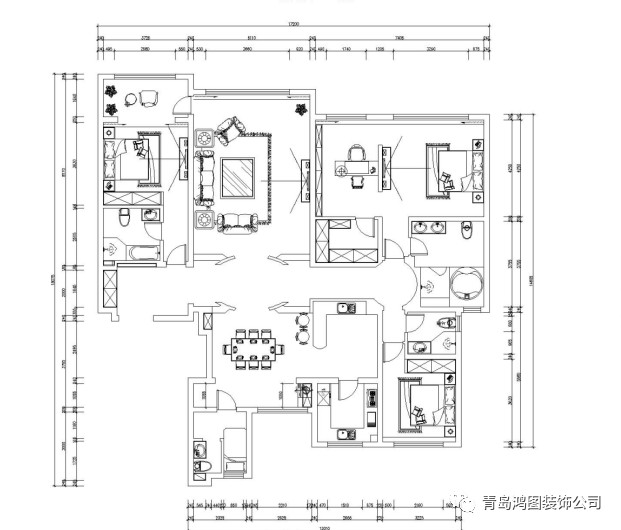
  平面布局图
 
  客厅
 
  客厅空间,简约的装饰线条,使空间规矩有格调,打造富流动性的宽敞空间感。墙面优雅的立体浮花是整个客厅空间的吸睛焦点,现代简约中又透露着典雅浪漫的气息。
 
  理石的电视背景墙洁净清爽,搭配藕粉色与紫色沙发,丰富空间的色彩层次和体块变化,再点缀几株绿植,强调屋主的生活品味。
 
  餐厅
 
  餐厅为了凸显家庭氛围,特意选用圆桌,连同地砖图案也特意选用圆形,圈出尺度流畅、祥和亲密的生活格局。
 
  书房
 
  书房为了凸显专属屋主的低调沉稳,使用温润木质、时尚金属线条与沉稳灰色布艺,围塑深邃精致,交织出时髦个性又不过于冰冷的空间氛围,阅读办公都能成为十分惬意的事。
 
  卧室
 
  卧室,榻榻米与衣柜书柜组合设计,将原本有限的面积拓展无限的空间。米白色与香槟色调唤醒浪漫生活,实现屋主希冀的自然、温暖与沉稳的氛围。
环保不达标全负责
环保不达标全负责
售后10次回访
售后10次回访
5+1电话模式
5+1电话模式
一站式·30分钟回复
一站式30分钟回复
Copyright © 烟台鸿图装饰公司 All rights reserved.            备案号:鲁ICP备17005650号            网站制作烟台智联网络公司 
Copyright © 烟台鸿图装饰公司
免费申请