服务热线:
0535-2110430

烟台
切换城市

热门城市

导航
返回顶部
返回顶部
狂欢再起 “4”不可挡
当前位置:首页 > 新闻动态

【千禧国际村】地中海风格三居,遇见浪漫遇见你

 发布时间:2019-09-04     浏览量:76     分享到:
文章
导读
  从明天起,做一个幸福的人,喂马,劈柴,周游世界。从明天起,关心粮食和蔬菜,我有一所房子,面朝大海,春暖花开。你是否也
   从明天起,做一个幸福的人,喂马,劈柴,周游世界。从明天起,关心粮食和蔬菜,我有一所房子,面朝大海,春暖花开。你是否也有一个关于大海的梦,不妨看一下这套充满地中海异域风情的案例。
 
项目名称:千禧国际村
设计单位:青岛鸿图装饰
设计师:郭毅
装修风格:地中海
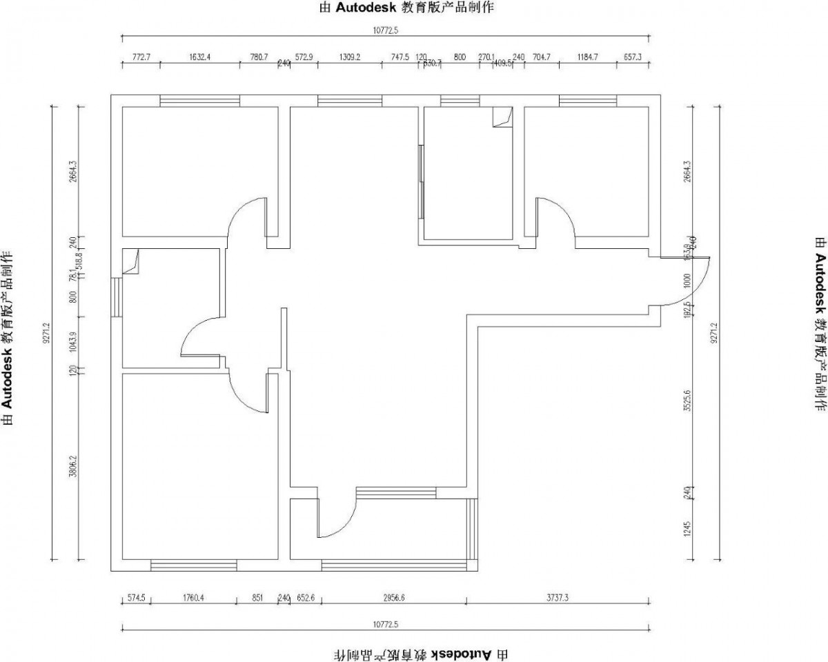
  原始布局图
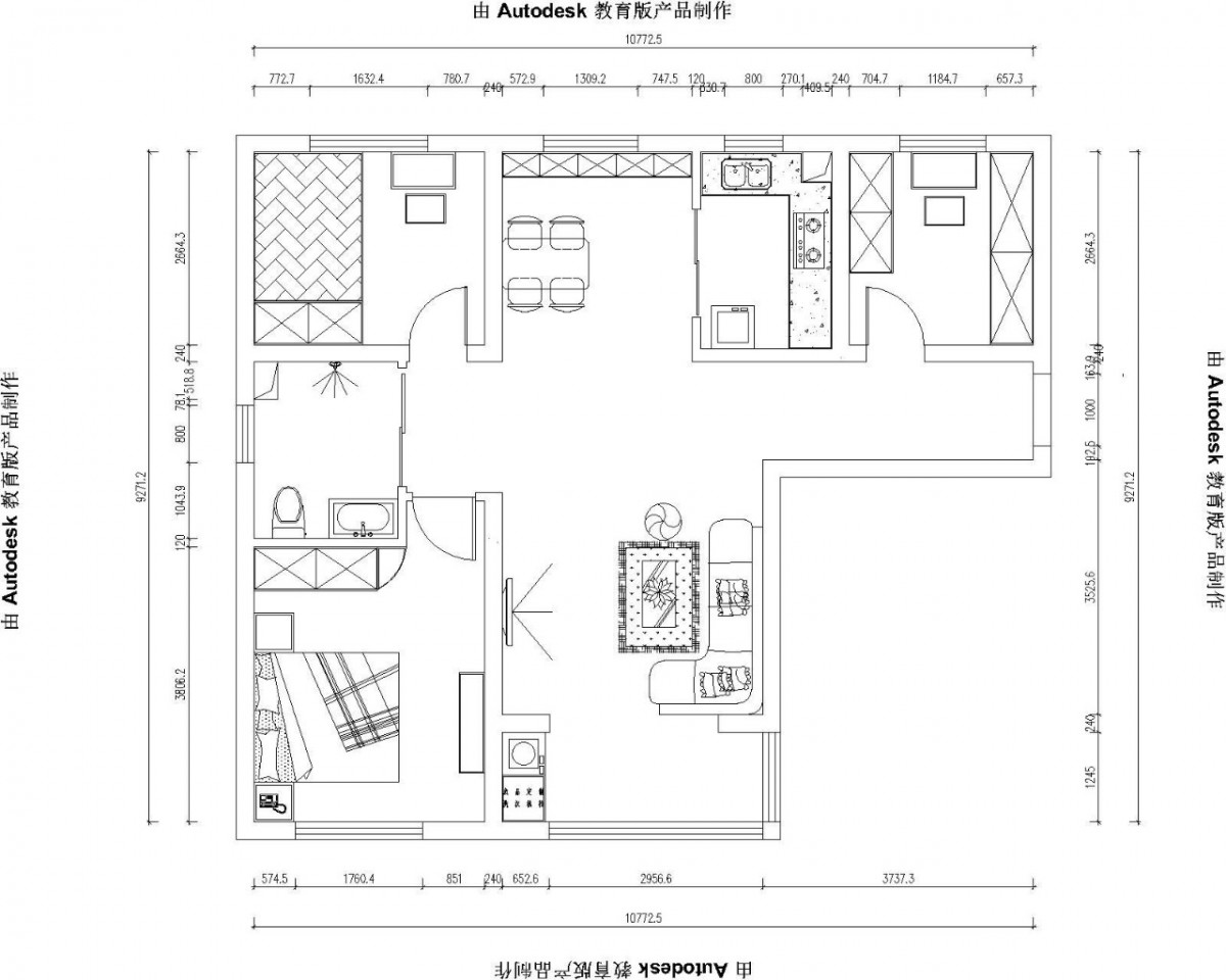
  设计布局图
  客厅

 
 
  舒适清爽的蓝色主调的客厅空间,轻松将海洋的曼妙尽收眼底:浅灰色布艺沙发搭配海一般深蓝色的电视背景墙,再用各种深度蓝色的布艺与艺术品做点缀,营造出一个浪漫又有韵味的时尚空间。
 
  餐厅
 
  浅蓝色餐椅与白色餐桌组合出清爽的视觉效果,映着明媚洁净的背景墙,船舵形状的艺术品,就像白云,海浪,天空和海风相互交织的协奏曲。在这样的环境下用餐,如同在一个阳光明媚的日子选择出海,在船头享受度假带来的无限惬意。
 
  厨房
 
  大面积白色橱柜勾勒出洁净通透的厨房空间,墙上若隐若现的浅蓝色瓷砖,再一次呼应了我们别具风情的地中海风格,即使烹饪时间我们也不能错过精彩与浪漫。
 
  卫生间
 
  蓝白瓷砖组合,颜色简约明快,彰显出蔚蓝色的浪漫情怀。花砖腰线与地砖加上了红色黄色橙色,热情奔放。干湿分离设计又很好的提高了空间的使用效率,无限贴近生活。

环保不达标全负责
环保不达标全负责
售后10次回访
售后10次回访
5+1电话模式
5+1电话模式
一站式·30分钟回复
一站式30分钟回复
Copyright © 烟台鸿图装饰公司 All rights reserved.            备案号:鲁ICP备17005650号            网站制作烟台智联网络公司 
Copyright © 烟台鸿图装饰公司
免费申请