发布时间:2019-10-11
浏览量:221
分享到:现代风家装一直是烟台装修市场中颇受欢迎的一款风格,但随着消费市场的变化,传统的现代风格也在加入一些玻璃、金属等新元素之后更符合当下社会的审美,新工艺的融入,新元素的加入,简约不简单,营造出简约大气的视觉感受!今天就和烟台装修公司鸿图装饰的小编来鉴赏这一组现代简约风格的装修案例!
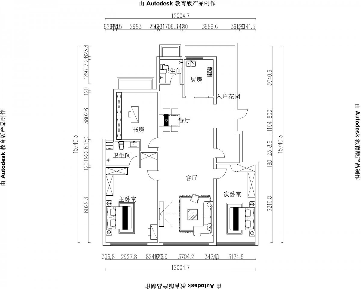
原始户型图

户型分析:
入户花园空间浪费太大,可以改造成储物间。
厨房空间不大气,应该做开放式厨房显空间大。
客卫太小,可以考虑扩大,做成干湿分离区,功能更明确。
客厅空间划分不明确,应该打造阳台休闲区更舒适。
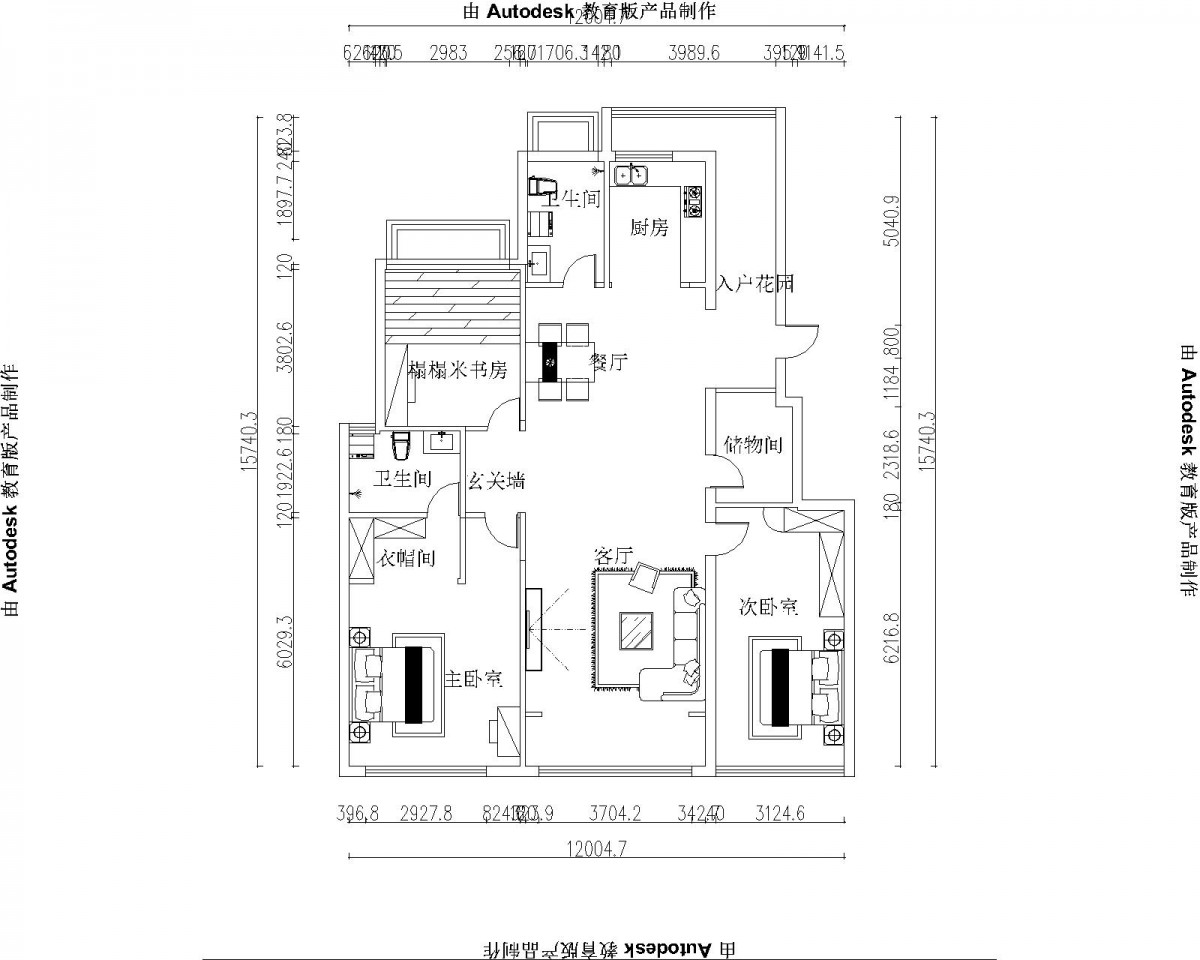
户型优化方案:

案例赏析

烟台装修在现代风方面讲求造型简单,直线条比较多,能够给人干练的感觉,色彩搭配上,本案以灰色为主色调,营造一种高级感,吊灯、茶几、边几等加入金属元素,为沉稳的客厅空间增添靓丽色彩。

米白色的主卧优雅端庄,占据视觉C位的是黄铜色流苏吊灯,灯光倾洒而下,卧室被披上轻奢晚礼服,墙面的黄铜装饰恰到好处的点缀,让背景墙更丰富立体,卧室整体给人一种自在舒适的感觉。

次卧充满了自由的味道,原木色木饰墙板自然质朴,大型装饰画没有在正中间,而是放在侧面,有一种不规则的美,充满个性的床头吊灯简约有范儿,浅咖色皮质单人椅质感舒适,所有的一切共同营造了一个随心所欲的舒适空间。

榻榻米房间既可以做茶室、卧室,又可以作为书房办公学习,尽可能多的设计一些收纳柜,方便日常生活需求,榻榻米房间一屋多用,功能齐全。更多精彩装修效果请关注烟台装修公司鸿图装饰官网!



