服务热线:
0535-2110430

烟台
切换城市

热门城市

导航
返回顶部
返回顶部
狂欢再起 “4”不可挡
当前位置:首页 > 新闻动态

【中联依山伴城】101㎡混搭风,干净明亮,带来别致的舒适感!

 发布时间:2019-10-21     浏览量:65     分享到:
文章
导读
  装修是件大事,选择什么样的装修风格呢?这也是很多业主比较纠结的问题,现在的家装风格那么多,每种风格都有自己的特点与设
   装修是件大事,选择什么样的装修风格呢?这也是很多业主比较纠结的问题,现在的家装风格那么多,每种风格都有自己的特点与设计理念,今天鸿图小编给大家分享的是中联依山伴城101㎡的混搭风格,就是设计师将其两种或者多种风格的特点融合在一起,它最大的魅力就在于打破了其他风格的单一性和固定性,从而显得千变万化。
  案例欣赏
 
项目名称:中联依山伴城
设计单位:青岛鸿图装饰
建筑面积:101㎡
设计师:陈斐
装修风格:混搭风格
  设计亮点
 
  混搭风格在装饰的形态、色彩、质感上都没有任何约束,混搭风格在装修材质的搭配上,更是极其自由,正因为混搭风格包含容纳了如此多的装修色彩和材质,才足以让空间显得熠熠生辉。
 
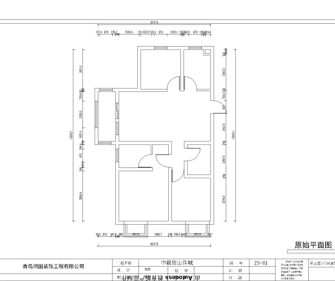
  原始平面图
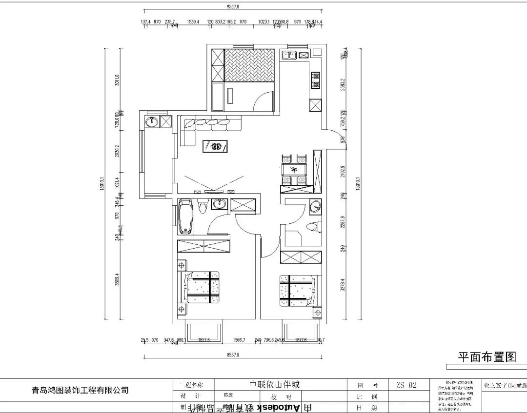
  本案平面图
  客厅
  客厅不管是家具的摆设,还是物品的装饰都着重强调其呈现出层次感,原木色搭配白色电视柜、灰色布艺沙发、亮色几何形地毯,即便是融合了这么多装修风格的设计元素,却依旧显得美观而不杂乱。
 
  休闲室
  休闲室本就是一个安静之所,是一个安放灵魂的地方,整个空间浅灰色搭配,让整个屋子散发出原生态的自然气息,采光非常的好,这样也显得室内更加开阔了。
  在室内的空间处理上,设计师注重色彩对于家的倾力营造,注重大小色块间的组合和搭配,在设计上,窗帘以高彩度色调打底,低亮度色彩点缀演绎,明暗之间将时尚更为随性、自然、舒适的展现出来。
 
  卧室
  卧室中的色彩运用符合人们对现代生活的审美需求,白色推拉门大衣柜,床头背景墙简约时尚的装饰画,整体设计简单朴素,却释放着低调的气质品味,高级的灰色寄托着家的温暖。
  深灰色的床头背景墙搭配水墨蓝装饰画瞬间焕发生机,给卧室带来一丝古典复古感,实用又创意,可谓是两全其美。再加上床头柜清新的装饰花,使人身心愉悦,烟灰色的床上用品搭配原木色风格的地板,干净明亮,带来别致的舒适感。
 
  卫生间
  卫生间整体以白色为主,靠窗装了浴缸,巧妙的利用了角落的空间,打造了一个舒适的淋浴区,干湿分离明确。少即是多,多即是少。以宁缺勿滥为精髓,合理的简化卫生间,从简单舒适中体现生活的精致。
  通过装饰画、地面材料,装饰品甚至光线的变化来表达不同功能空间的划分,而且这种划分又随着不同的时间段表现出兼容性和流动性。把整个卫生间经过减法和加法的手法分割成动静分离的区域,布局工整和谐,动静相宜。
  让每一个角落都弥漫着非凡的魅力和优雅的气度,简约而不简单,温暖而又时尚。充分展现从单一角度构成多层次的质感的效果。置身其中,更好的感受空间的延展性。

环保不达标全负责
环保不达标全负责
售后10次回访
售后10次回访
5+1电话模式
5+1电话模式
一站式·30分钟回复
一站式30分钟回复
Copyright © 烟台鸿图装饰公司 All rights reserved.            备案号:鲁ICP备17005650号            网站制作烟台智联网络公司 
Copyright © 烟台鸿图装饰公司
免费申请