服务热线:
0535-2110430

烟台
切换城市

热门城市

导航
返回顶部
返回顶部
狂欢再起 “4”不可挡
当前位置:首页 > 新闻动态

168m²宽阔舒适大平层,简约灰白调,点亮生活格调

 发布时间:2019-10-24     浏览量:41     分享到:
文章
导读
  今天要为大家分享的是一套面积为1 6 8平米的简约风大平层住宅,业主偏爱大平层的宽阔舒适,希望家中能有专属空间满足平时的
   今天要为大家分享的是一套面积为1 6 8平米的简约风大平层住宅,业主偏爱大平层的宽阔舒适,希望家中能有专属空间满足平时的娱乐爱好,设计师综合了业主的需求与爱好,为他们呈现了一个简约而有格调的家。
 
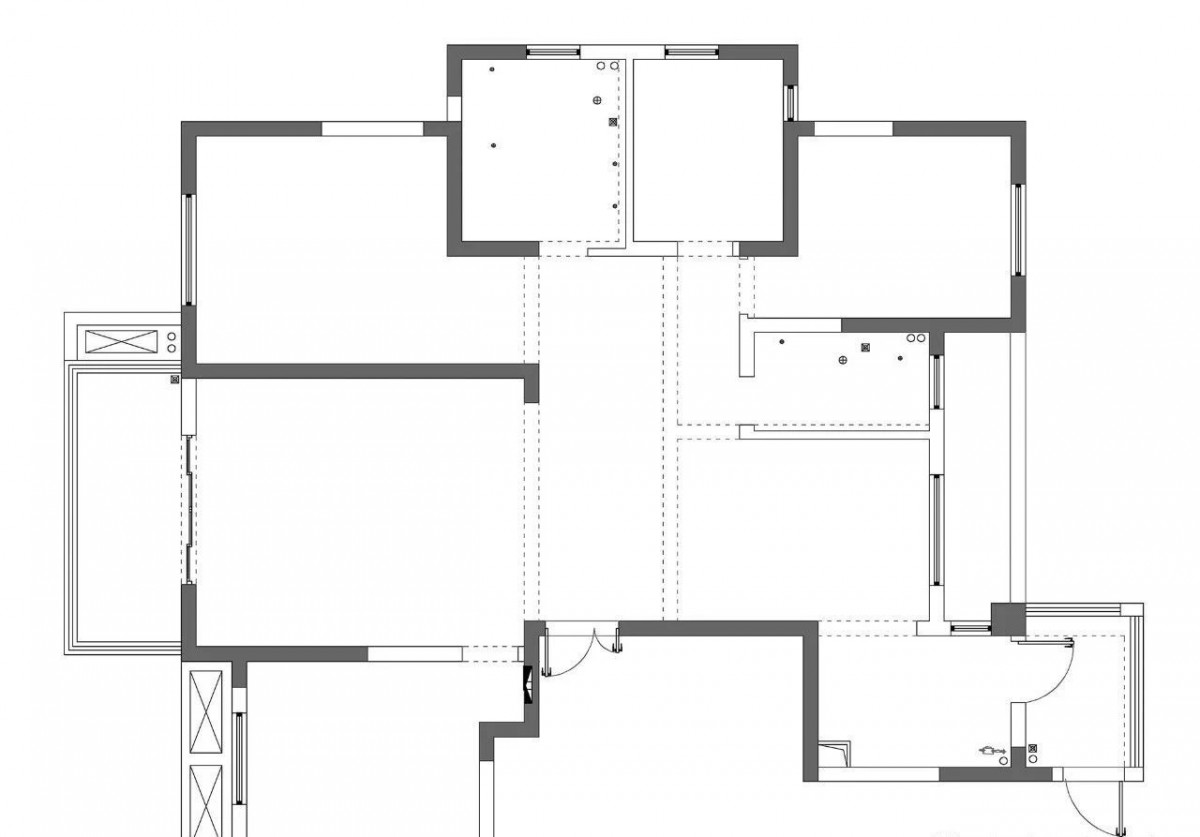
   原始户型图 
   平面布局图 
   玄关 
  入户通过两侧增加收纳柜满足鞋子的收纳需求,定制柜的设计也有效的避免了入户对室内空间的一览无余,简约时尚,从进门就践行简约主题。
 
   客厅 
  整个客厅色调较为清爽,除了要满足正常的生活需求外,也将业主对艺术的审美得到展现,客厅无主灯设计,让其空间更简洁。黑灰过渡色让沙发背景墙更深邃且灵动。阳台落地窗户的光线可直入室内,绿植的折射与自然生态共存,打造一个充满舒适感的空间。
  电视背景墙木色与白色搭配,赋予空间一种安静、舒适的感觉。
  餐厅 
  厨房与餐厅一体设计,灰色的岛台,白色的餐桌线条简单,顶部设计灯带,弱化原来梁体让其空间轻松。纯白餐桌搭配f r a m a钢制三角餐椅及白色h i m-h e r餐椅,打造黑白空间的平衡世界。
  考虑到孩子成长的安全性,中岛台面做成圆弧状,趣味性立柱让孩子也爱上了和妈妈一起做烘焙,让孩子好奇的天性畅通无阻。
 
   主卧 
  主卧做了一整面衣柜,暗藏把手的设计让过道更洁净。
  木色的地板,波普纹理的背景墙,灰白色的床品,搭配挂衣架及装饰画,整个空间色彩搭配温柔之余,尽显简洁雅致的调性。
 
   次卧 
  以海洋绿作为次卧床头背景墙主色调,配上灰色窗帘,优雅静谧。相同色相的装饰画,螺旋式吊灯,让居住者感觉自由和洒脱,赋予生活舒适感。
 
   儿童房 
  儿童房的设计,趋向于孩子拥有更多的活动空间,床边趣味性猴子小吊灯,与靛蓝和土耳其蓝的结合增加睡眠的静谧感。
 
   卫生间 
  卫生间干湿分离设计,瓷砖选用海王绿搭配爵士白,悬挂式洗浴盆,带入现代都市精致感的氛围。
  沐浴区,是白色的大理石纹墙地砖的结合,另一面是水磨石的形式,使空间艺术与层次感并行。
环保不达标全负责
环保不达标全负责
售后10次回访
售后10次回访
5+1电话模式
5+1电话模式
一站式·30分钟回复
一站式30分钟回复
Copyright © 烟台鸿图装饰公司 All rights reserved.            备案号:鲁ICP备17005650号            网站制作烟台智联网络公司 
Copyright © 烟台鸿图装饰公司
免费申请