服务热线:
0535-2110430

烟台
切换城市

热门城市

导航
返回顶部
返回顶部
狂欢再起 “4”不可挡
当前位置:首页 > 新闻动态

【龙山上郡】118㎡北欧风,打造卡座餐厅的极致浪漫!

 发布时间:2019-10-24     浏览量:65     分享到:
文章
导读
  幸福感,更多来源于简约、自然、宁静的心态,以及家庭的温暖、个人价值的努力和实现。幸福的核心,是简约的生活,而简约的生
   幸福感,更多来源于简约、自然、宁静的心态,以及家庭的温暖、个人价值的努力和实现。幸福的核心,是简约的生活,而简约的生活的核心,则是真实。今天青岛鸿图小编给大家分享的是龙山上郡118㎡的北欧风格,在灰白的色调中加入原木色做点缀,体现了与自然相融合的设计理念,简洁又舒适,色彩搭配和谐又高级。
  案例欣赏
 
项目名称:龙山上郡
设计单位:青岛鸿图装饰
建筑面积:118㎡
设计师:王煜
装修风格:北欧风格
  设计亮点
  北欧风格简约优雅,质朴而不失格调,每一个线条的背后,每一处设计的内涵,似都有着许许多多的故事,淡雅的空间背后反映出都市人对低压生活、休闲生活的追求,很好的诠释了质与感并存的自由家居。
 
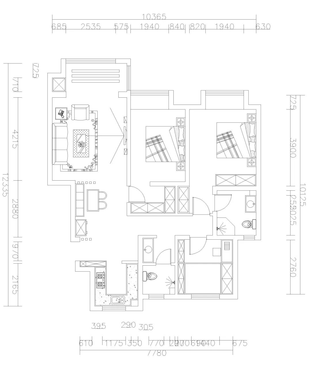
  本案平面图
  玄关
  玄关左边设计了一排收纳柜,背景墙搭配一副简约的装饰画,黑色的线条给人自然的视觉延伸效果,营造出温馨的家居质感。收纳柜上面也可以放一些精致的装饰品,这样一点也不显凌乱,还增加了收纳空间。
 
  客厅
  客厅以灰白色为主,大型窗户,不仅光线良好,客厅内的通风效果也很佳。电视背景墙左上方采用了白色仿古砖造型,右边羚羊头装饰物,代表着业主家吉祥的寓意,同时使人心情平静,显得客厅温馨干净、质朴优雅。
 
  餐厅
  如今餐厅卡座已经成为了一种时尚的餐厅设计,搭配原木色的餐桌,为室内打造了一个温馨又浪漫具有情调的用餐环境。充分利用了与客厅之间空间,一杯清茶、一碗粥和最爱的人一起,品尝属于自己的美味故事。
 
  主卧
  主卧的顶面和墙面都使用了单一的纯色为背景,挂上几幅水墨装饰画,黑色的北欧风床头吊灯,从外面的喧嚣回归宁静,心灵也找到了港湾。色彩搭配中体现出浓郁的北欧风情,给人带来一种返璞归真的自然气息。
 
  次卧
  次卧给人的第一感觉就是小清新+舒适,卧室是我们的私人空间,不仅仅是传统意义上心灵避风港,而是居住着心灵的一部分,是经岁月历练之后,对简单纯粹的重新解读,是回归本真,是体会了生活的所有,以淡然的状态继续爱生活的积极人生哲学。
 
  厨房
  厨房白色操作台面、灰色地砖、白色集成吊顶天花板,衬托得窗户与浅灰色灶台外地时尚大气,业主做饭都拥有了好心情,在光线的照射下显得特别的明媚舒适。
 
  卫生间
  卫生间的地面和墙面都选用了灰色格调的瓷砖,不仅简约时尚大气、更耐脏实用。干湿分离中间设置透明的玻璃隔断,把干湿分离做到位,椭圆形的白色梳妆镜让室内看起来大气美观。
环保不达标全负责
环保不达标全负责
售后10次回访
售后10次回访
5+1电话模式
5+1电话模式
一站式·30分钟回复
一站式30分钟回复
Copyright © 烟台鸿图装饰公司 All rights reserved.            备案号:鲁ICP备17005650号            网站制作烟台智联网络公司 
Copyright © 烟台鸿图装饰公司
免费申请