服务热线:
烟台
切换城市
热门城市
烟台
威海
青岛
连云港
临沂
潍坊
网站首页
精品案例
装修产品
设计师
热装楼盘
家具软装
促销活动
家居展厅
关于鸿图
设计与报价
网站首页
装修产品
新房装修
婚房装修
旧房改造
商业空间
精品案例
设计师
首席设计师
主任设计师
设计师
热装楼盘
家具软装
促销活动
关于鸿图
企业简介
企业荣誉
家居展厅
联系我们
人才招聘
设计与报价
返回顶部
装修案例
当前位置:
首页
>
精品案例
预约TA
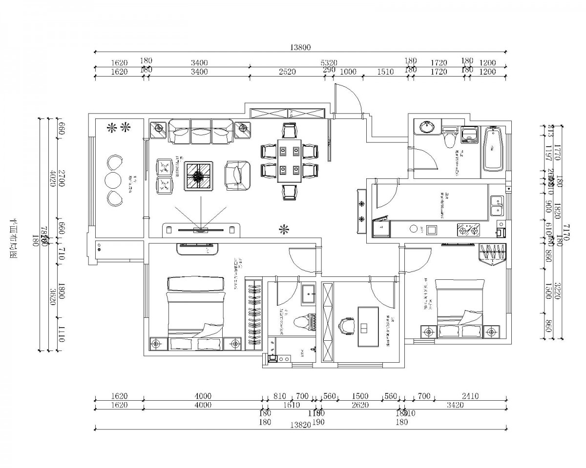
保利香槟国际121㎡现代
设计师-郭毅
预约TA
0
个赞
所在小区:保利香槟国际
装修风格:现代简约
建筑面积:121平米
装修造价:12万
户型:三室
关注:59次浏览
0
个赞
设计说明
设计风格为现代风格,营造有简单大气的气氛,还要有温馨与舒适感。本方案用暖色为主色调。大气却却不失整个空间的温暖的感觉。
保利香槟国际121㎡现代
保利香槟国际121㎡现代
保利香槟国际121㎡现代
保利香槟国际121㎡现代
保利香槟国际121㎡现代
停止
播放
喜欢
其他相关案例
更多案例
李宁后现代简约110㎡
【保利香榭里公馆】173平米新中式风格装修案
【中海海悦府】260平米欧式风格装修案例
其他相关案例
更多案例
合庆东紫园220平别墅 美式风格装修设计方案
餐饮品牌空间设计
MC酒吧—商业空间设计
高端网咖装修设计
免费量房
在线装修报价
立即预约>>
推荐设计师
更多
孙嘉翼
设计师
预约TA
潘婷
设计师
预约TA
于芹
首席设计师
预约TA
客户口碑
更多
富春山居业主送锦旗
锦旗表心意—兴盛名仕城业主
兴盛铭仕城业主送锦旗
安得利迎海花园业主送锦旗
最新活动
更多
时间:2019/09/20
地点:威海环翠区青岛中路39号(海韵华府朗郡三期)
环保不达标全负责
售后10次回访
5+1电话模式
一站式30分钟回复
Copyright © 烟台鸿图装饰公司 All rights reserved. 备案号:
鲁ICP备17005650号
网站制作
:
烟台智联网络公司
Copyright © 烟台鸿图装饰公司
首页
申请报价
活动报名
今日已有
341
位业主预约