服务热线:
烟台
切换城市
热门城市
烟台
威海
青岛
连云港
临沂
潍坊
网站首页
精品案例
装修产品
设计师
热装楼盘
家具软装
促销活动
家居展厅
关于鸿图
设计与报价
网站首页
装修产品
新房装修
婚房装修
旧房改造
商业空间
精品案例
设计师
首席设计师
主任设计师
设计师
热装楼盘
家具软装
促销活动
关于鸿图
企业简介
企业荣誉
家居展厅
联系我们
人才招聘
设计与报价
返回顶部
装修案例
当前位置:
首页
>
精品案例
预约TA
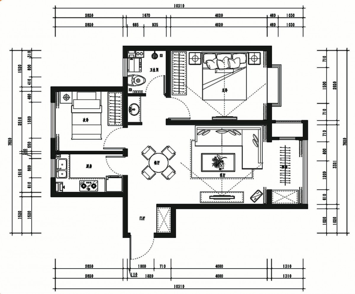
依琳美地86㎡现代中式
设计师-郭毅
预约TA
0
个赞
所在小区:依琳美地
装修风格:新中式
建筑面积:86平米
装修造价:9万
户型:两室
关注:93次浏览
0
个赞
设计说明
设计风格为中式风格,与老版中式运用色彩材料有所不同,还要有现代与舒适感。本方案用暖色为主色调。明亮的色调整体提升家居品味。
依琳美地86㎡现代中式
依琳美地86㎡现代中式
依琳美地86㎡现代中式
依琳美地86㎡现代中式
依琳美地86㎡现代中式
停止
播放
喜欢
其他相关案例
更多案例
烟台室内装修【山海佳苑 山湖顶】160平米经典
和达璟城167㎡新中式装修效果图
【杰瑞祥和苑】143平米现代简约风格设计案例
其他相关案例
更多案例
烟台装修案例—翡翠明珠装修效果图
烟台装饰公司效果图—海晟花园现代美式案例
【鸿图装饰】万光福园清新美式风格设计案例
伴山一号紫林园—130平米新中式风格效果图品
免费量房
在线装修报价
立即预约>>
推荐设计师
更多
孙嘉翼
设计师
预约TA
潘婷
设计师
预约TA
于芹
首席设计师
预约TA
客户口碑
更多
富春山居业主送锦旗
锦旗表心意—兴盛名仕城业主
兴盛铭仕城业主送锦旗
安得利迎海花园业主送锦旗
最新活动
更多
时间:2019/09/20
地点:威海环翠区青岛中路39号(海韵华府朗郡三期)
环保不达标全负责
售后10次回访
5+1电话模式
一站式30分钟回复
Copyright © 烟台鸿图装饰公司 All rights reserved. 备案号:
鲁ICP备17005650号
网站制作
:
烟台智联网络公司
Copyright © 烟台鸿图装饰公司
首页
申请报价
活动报名
今日已有
341
位业主预约