服务热线:
烟台
切换城市
热门城市
烟台
威海
青岛
连云港
临沂
潍坊
网站首页
精品案例
装修产品
设计师
热装楼盘
家具软装
促销活动
家居展厅
关于鸿图
设计与报价
网站首页
装修产品
新房装修
婚房装修
旧房改造
商业空间
精品案例
设计师
首席设计师
主任设计师
设计师
热装楼盘
家具软装
促销活动
关于鸿图
企业简介
企业荣誉
家居展厅
联系我们
人才招聘
设计与报价
返回顶部
装修案例
当前位置:
首页
>
精品案例
预约TA
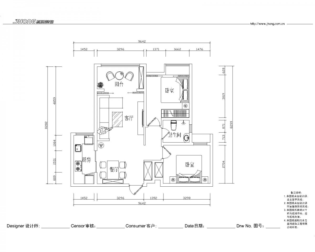
鼎世华府91㎡现代简约
设计师-陈斐
预约TA
0
个赞
所在小区:鼎世华府
装修风格:现代简约
建筑面积:91平米
装修造价:9万
户型:两室
关注:120次浏览
0
个赞
设计说明
本案为现代简约风格、俗话说简约而不简单。强调舒适和使用。
鼎世华府91㎡现代简约
鼎世华府91㎡现代简约
鼎世华府91㎡现代简约
鼎世华府91㎡现代简约
鼎世华府91㎡现代简约
停止
播放
喜欢
其他相关案例
更多案例
【黄海小区】200平米新中式风格装修效果图
星雨华府89㎡现代简约风格装修效果图
鸿图装饰学府小区145平米现代简约风格装修效
其他相关案例
更多案例
烟台装修设计—暖山国际180平米欧式大宅案例
岘山花城130㎡欧式
春山华居100㎡现代简约风格装修效果图
东郡阅山85㎡ 北欧风格装修效果图
免费量房
在线装修报价
立即预约>>
推荐设计师
更多
孙嘉翼
设计师
预约TA
潘婷
设计师
预约TA
于芹
首席设计师
预约TA
客户口碑
更多
富春山居业主送锦旗
锦旗表心意—兴盛名仕城业主
兴盛铭仕城业主送锦旗
安得利迎海花园业主送锦旗
最新活动
更多
时间:2019/09/20
地点:威海环翠区青岛中路39号(海韵华府朗郡三期)
环保不达标全负责
售后10次回访
5+1电话模式
一站式30分钟回复
Copyright © 烟台鸿图装饰公司 All rights reserved. 备案号:
鲁ICP备17005650号
网站制作
:
烟台智联网络公司
Copyright © 烟台鸿图装饰公司
首页
申请报价
活动报名
今日已有
341
位业主预约