服务热线:
烟台
切换城市
热门城市
烟台
威海
青岛
连云港
临沂
潍坊
网站首页
精品案例
装修产品
设计师
热装楼盘
家具软装
促销活动
家居展厅
关于鸿图
设计与报价
网站首页
装修产品
新房装修
婚房装修
旧房改造
商业空间
精品案例
设计师
首席设计师
主任设计师
设计师
热装楼盘
家具软装
促销活动
关于鸿图
企业简介
企业荣誉
家居展厅
联系我们
人才招聘
设计与报价
返回顶部
装修案例
当前位置:
首页
>
精品案例
预约TA
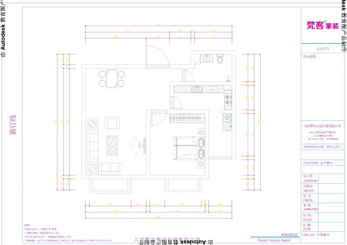
鲁润静园75㎡日式
设计师-郭毅
预约TA
0
个赞
所在小区:鲁润静园
装修风格:现代简约
建筑面积:75平米
装修造价:10万
户型:两室
关注:71次浏览
0
个赞
设计说明
业主想在工作之余,能有一个舒适且放松的生活空间,于是在居住的环境中加入了一些比较舒适的家具和壁纸。带来了一种专属于日式小清新的特殊的文雅的感觉,使其将整个空间打造成一种宜家的舒适感。
鲁润静园75㎡日式
鲁润静园75㎡日式
鲁润静园75㎡日式
鲁润静园75㎡日式
鲁润静园75㎡日式
停止
播放
喜欢
其他相关案例
更多案例
威海万和花园152平3室2厅 现代风格装修
源山郡别墅——品中式禅意之居
世纪公馆103㎡中式风格
其他相关案例
更多案例
烟台鸿图装饰—金海名园现代简约风格效果图
中海御城107㎡新中式
鸿图装饰以精品案例—桦林彩云城127平米禅意
办公空间装修设计效果图
免费量房
在线装修报价
立即预约>>
推荐设计师
更多
孙嘉翼
设计师
预约TA
潘婷
设计师
预约TA
于芹
首席设计师
预约TA
客户口碑
更多
富春山居业主送锦旗
锦旗表心意—兴盛名仕城业主
兴盛铭仕城业主送锦旗
安得利迎海花园业主送锦旗
最新活动
更多
时间:2019/09/20
地点:威海环翠区青岛中路39号(海韵华府朗郡三期)
环保不达标全负责
售后10次回访
5+1电话模式
一站式30分钟回复
Copyright © 烟台鸿图装饰公司 All rights reserved. 备案号:
鲁ICP备17005650号
网站制作
:
烟台智联网络公司
Copyright © 烟台鸿图装饰公司
首页
申请报价
活动报名
今日已有
341
位业主预约