服务热线:
0535-2110430

烟台
切换城市

热门城市

导航
返回顶部
返回顶部
当前位置:首页 > 精品案例

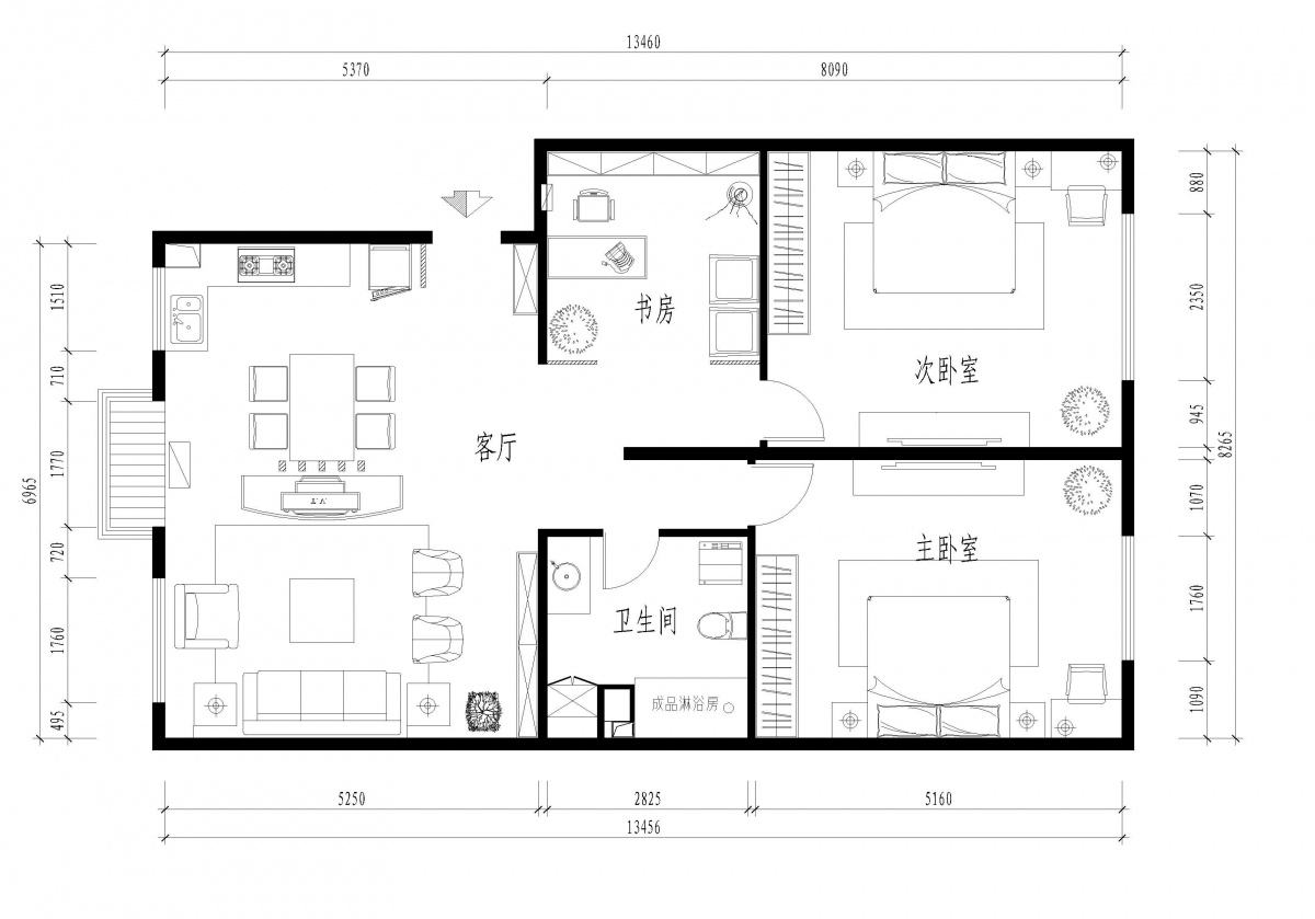
晓港名城135㎡现代简约

设计师-

预约TA点赞 0 个赞
  • 所在小区:晓港名城

    装修风格:现代简约

  • 建筑面积:135平米

    装修造价:15万

  • 户型:三室

    关注:119次浏览

  • 点赞 0 个赞

设计说明

 现代简约风格是以简约为主的装修风格。在建筑装饰上提倡简约,简约风格的特色是将设计的元素、色彩、照明、原材料简化到最少的程度,但对色彩、材料的质感要求很高。因此,简约的空间设计通常非常含蓄,往往能达到以少胜多、以简胜繁的效果。
 
停止播放
  • 尽可能不用装饰和取消多余的东西,认为任何复杂的设计,没有实用价值的特殊部件及任何装饰都会增加建筑造价,强调形式应更多地服务于功能
  • 简介:
  • 简约不等于简单,它是经过深思熟虑后经过创新得出设计和思路的延展,不是简单“堆砌”和平淡的“摆放”,不像有些设计师粗浅的理解的“直白”它凝结着设计师的独具匠心,既美观又实用。
  • 强调功能性设计,线条简约流畅,色彩对比强烈,这是现代风格家具的特点。由于线条简单、装饰元素现代风格家具需要完美的软装配合,软装到位是现代风格家具装饰的关键。
  • 现代简约风格饰品是所有家装风格中最不拘一格的一个。一些线条简单,设计独特甚至是极富创意和个性的饰品都可以成为现代简约风格家装中的一员。
尽可能不用装饰和取消多余的东西,认为任何复杂的设计,没有实用价值的特殊部件及任何装饰都会增加建筑造价,强调形式应更多地服务于功能			
简介: 简约不等于简单,它是经过深思熟虑后经过创新得出设计和思路的延展,不是简单“堆砌”和平淡的“摆放”,不像有些设计师粗浅的理解的“直白”它凝结着设计师的独具匠心,既美观又实用。			
强调功能性设计,线条简约流畅,色彩对比强烈,这是现代风格家具的特点。由于线条简单、装饰元素现代风格家具需要完美的软装配合,软装到位是现代风格家具装饰的关键。			
现代简约风格饰品是所有家装风格中最不拘一格的一个。一些线条简单,设计独特甚至是极富创意和个性的饰品都可以成为现代简约风格家装中的一员。
环保不达标全负责
环保不达标全负责
售后10次回访
售后10次回访
5+1电话模式
5+1电话模式
一站式·30分钟回复
一站式30分钟回复
Copyright © 烟台鸿图装饰公司 All rights reserved.            备案号:鲁ICP备17005650号            网站制作烟台智联网络公司 
Copyright © 烟台鸿图装饰公司
免费申请