服务热线:
0535-2110430

烟台
切换城市

热门城市

导航
返回顶部
返回顶部
当前位置:首页 > 精品案例

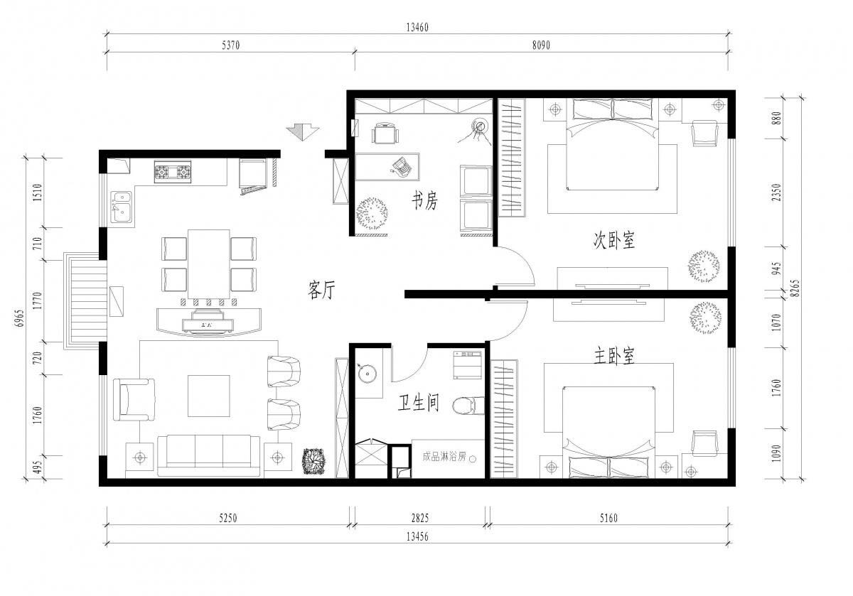
中海兰亭100㎡美式

设计师-

预约TA点赞 0 个赞
  • 所在小区:中海兰亭

    装修风格:美式

  • 建筑面积:100平米

    装修造价:12万

  • 户型:三室

    关注:224次浏览

  • 点赞 0 个赞

设计说明

 美式家居风格的这些元素也正好迎合了时下的文化资产者对生活方式的需求,即:有文化感、有贵气感,还不能缺乏自在感与情调感。
 
停止播放
  • 美式家居的书房简单实用,但软装颇为丰富,各种象征主人过去生活经历的陈设一应俱全,被翻卷边的古旧书籍、颜色发黄的航海地图、乡村风景的油画、一支鹅毛笔……即使是装饰品,这些东西也足以为书房的美式风格加分。
  • 简介:
  • 客厅作为待客区域,一般要求简洁明快,同时装修较其它空间要更明快光鲜,通常使用大量的石材和木饰面装饰;美国人喜欢有历史感的东西,这不仅反映在软装摆件上对仿古艺术品的喜爱,同时也反映在装修上对各种仿古墙地砖、石材的偏爱和对各种仿旧工艺的追求上。
  • 家庭室作为家庭成员休息交流的中心,属私密性很强的空间,一般设于餐厅旁,并有电视机,同时沙发和座椅选择轻松明快的式样,室内绿化也较为丰富,装饰画较多。
  • 简介:
美式家居的书房简单实用,但软装颇为丰富,各种象征主人过去生活经历的陈设一应俱全,被翻卷边的古旧书籍、颜色发黄的航海地图、乡村风景的油画、一支鹅毛笔……即使是装饰品,这些东西也足以为书房的美式风格加分。			
简介: 客厅作为待客区域,一般要求简洁明快,同时装修较其它空间要更明快光鲜,通常使用大量的石材和木饰面装饰;美国人喜欢有历史感的东西,这不仅反映在软装摆件上对仿古艺术品的喜爱,同时也反映在装修上对各种仿古墙地砖、石材的偏爱和对各种仿旧工艺的追求上。			
家庭室作为家庭成员休息交流的中心,属私密性很强的空间,一般设于餐厅旁,并有电视机,同时沙发和座椅选择轻松明快的式样,室内绿化也较为丰富,装饰画较多。			
简介:
环保不达标全负责
环保不达标全负责
售后10次回访
售后10次回访
5+1电话模式
5+1电话模式
一站式·30分钟回复
一站式30分钟回复
Copyright © 烟台鸿图装饰公司 All rights reserved.            备案号:鲁ICP备17005650号            网站制作烟台智联网络公司 
Copyright © 烟台鸿图装饰公司
免费申请