服务热线:
0535-2110430

烟台
切换城市

热门城市

导航
返回顶部
返回顶部
当前位置:首页 > 精品案例

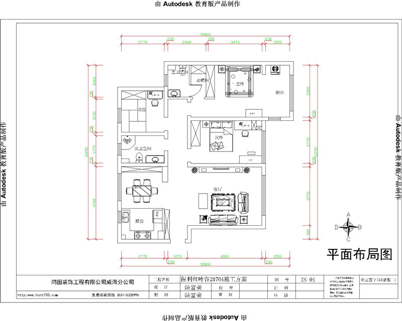
保利红叶谷130平 现代风格装修案例

设计师-

预约TA点赞 2 个赞
  • 所在小区:保利红叶谷

    装修风格:现代简约

  • 建筑面积:130平米

    装修造价:12万

  • 户型:三室

    关注:206次浏览

  • 点赞 2 个赞

设计说明

每个人的设计都是与众非凡的,设计是根据业主的需求,从功能,软装,色彩,功能结合到一起。才能体现一个家的效果,现代简约看似简单,其实设计给人的感觉就是从空间显得大方,温馨,特别有层次感。

停止播放
  • 简介:
  • 简介:
  • 简介:
  • 简介:
  • 简介:
简介: 简介: 简介: 简介: 简介:
环保不达标全负责
环保不达标全负责
售后10次回访
售后10次回访
5+1电话模式
5+1电话模式
一站式·30分钟回复
一站式30分钟回复
Copyright © 烟台鸿图装饰公司 All rights reserved.            备案号:鲁ICP备17005650号            网站制作烟台智联网络公司 
Copyright © 烟台鸿图装饰公司
免费申请