服务热线:
0535-2110430
烟台
切换城市
热门城市
烟台
网站首页
精品案例
装修产品
设计师
热装楼盘
家具软装
促销活动
家居展厅
关于鸿图
设计与报价
网站首页
装修产品
新房装修
婚房装修
旧房改造
商业空间
精品案例
设计师
首席设计师
主任设计师
设计师
热装楼盘
家具软装
促销活动
关于鸿图
企业简介
企业荣誉
家居展厅
联系我们
人才招聘
设计与报价
返回顶部
装修案例
当前位置:
首页
>
精品案例
预约TA
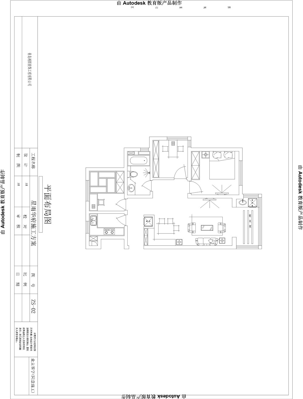
星雨华府92㎡现代混搭风格装修案例效果图
设计师-
预约TA
0
个赞
所在小区:星雨华府
装修风格:混搭
建筑面积:92平米
装修造价:8万
户型:三室
关注:122次浏览
0
个赞
设计说明
在进行混搭风格装修时,装修者能够凭借自己独特的审美和随性而发的感觉自由发挥进行设计,期间不受任何其他主意打扰。装修者可以凭借自己的想法通过家具打造出符合自己要求的装修效果。所以,它具有自主选择性的特点,并且在某种方面来说,这也是装修者自己内心思想意识的表现。
星雨华府92㎡现代混搭风格装修案例效果图
星雨华府92㎡现代混搭风格装修案例效果图
星雨华府92㎡现代混搭风格装修案例效果图
星雨华府92㎡现代混搭风格装修案例效果图
星雨华府92㎡现代混搭风格装修案例效果图
停止
播放
喜欢
其他相关案例
更多案例
晓港名城135㎡现代简约
【华信家园】140平米现代简约风格装修设计方
世纪公馆103㎡中式风格
其他相关案例
更多案例
星雨华府欧式119㎡欧式实景装修效果图
鸿图装饰学府小区145平米现代简约风格装修效
【龙湖葡醍海湾】优雅现代北欧风格大宅装修效
湾九里101平欧式风格装修设计效果图
免费量房
在线装修报价
立即预约>>
推荐设计师
更多
王旭
预约TA
李卫卫
设计师
预约TA
王立燕
设计师
预约TA
客户口碑
更多
富春山居业主送锦旗
锦旗表心意—兴盛名仕城业主
兴盛铭仕城业主送锦旗
安得利迎海花园业主送锦旗
最新活动
更多
时间:2019/09/20
地点:威海环翠区青岛中路39号(海韵华府朗郡三期)
环保不达标全负责
售后10次回访
5+1电话模式
一站式30分钟回复
Copyright © 烟台鸿图装饰公司 All rights reserved. 备案号:
鲁ICP备17005650号
网站制作
:
烟台智联网络公司
Copyright © 烟台鸿图装饰公司
首页
申请报价
活动报名
2110430
今日已有
343
位业主预约