今天分享的是一套90平米的小三房,布局略显紧凑,但是依旧温馨舒适,尤其是全屋很多温润的原木元素,很喜欢这种温暖的自然风,进到家里就觉得很放松~一起跟着
青岛鸿图装饰小编来看看吧!
面积:90㎡
风格:简约风
户型:三室
【装修效果图】
▼平面图

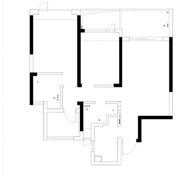
原始户型图:
1、玄关没有鞋柜位置;
2、客餐厅空间偏小,想要扩大一点;
3、主卧和书房希望做成套房,但是又要保证两个空间的独立性。
平面布局设计图:
1、借用厨房和卫生间部分墙体,增加嵌入式鞋柜并且设计换鞋凳;
2、将阳台包进客厅,并做书桌隔断,打通次卧生活阳台,改为阳台进入阳台;
3、主卧利用衣柜设计增加嵌入式移门,平时可隐藏变成套房形式;
4、卫生间飘窗利用率不高,将厨房部分墙体挖空利用飘窗空间增加微波炉位置;
5、电视柜下方挖了一个猫洞,方便猫的进出。
▼玄关
原木色换鞋凳与白色柜体对比鲜明,餐边柜外侧开向玄关,增加实用收纳功能。
▼厨房
白色操作台让厨房色彩过渡自然,利用卫生间飘窗位置放置微波炉,充分利用空间提高了厨房的实用功能。
▼餐厅
餐厅装饰元素少,大量留白,更多的利用直角线条打造出美感,简单搭配就有了这个实用美观并存的温馨之地。
▼客厅
全屋通铺木地板,墙面刷浅灰色漆,将原木搭配灰色的美感发挥到极致,营造一个放松身心的空间。客厅软装和硬装的结合,打造出简约大气的氛围,温柔而有力量。
▼阳台
客厅阳台收进室内后,现场制作了书桌、书柜,起到隔断的作用,也增加了家里的实用功能,可以在这里办公。客厅阳台另一侧做了原木色隐形门,推开后进入生活阳台,洗衣柜下边留了猫窝,升降式晾衣杆更方便。
▼过道
把主卧和书房合并成套房后,走廊底部就是主卧门了,次卧的墙面外侧做了嵌入式柜,把走廊的空间也利用来收纳。
▼主卧
主卧床买成品靠背加长的,插座开孔安装,床头柜也包在里面更有整体感。颜值超高的圆形壁灯、金属吊灯、彩色抱枕,一点一点丰富自己的家,每一件都不是随意的拼凑。
▼次卧
次卧简洁素雅,色调沉稳宁静,床头挂画购于国外建筑大师的画,成了次卧的点睛之笔,一切都显得和谐温暖。
▼卫生间
卫生间为经典的大理石,墙面采用工字型铺贴,时尚干净的色调搭配,实用又大气。