服务热线:
0535-2110430

烟台
切换城市

热门城市

导航
返回顶部
返回顶部
狂欢再起 “4”不可挡
当前位置:首页 > 新闻动态

听老婆的话,新房装成北欧风实在是太舒服啦~

 发布时间:2019-04-13     浏览量:39     分享到:
文章
导读
  今天给大家推荐的是108㎡北欧风装修,众所周知,北欧风是一款经典大气且永远流行的风格,女主人紧跟潮流,希望自己的家可以
   今天给大家推荐的是108㎡北欧风装修,众所周知,北欧风是一款经典大气且永远流行的风格,女主人紧跟潮流,希望自己的家可以过不过时,温馨漂亮。不得不说,新家这么装太赞了。希望这套案例能给想要装修的你们一些灵感!
 
面积:108㎡

风格:北欧风

 
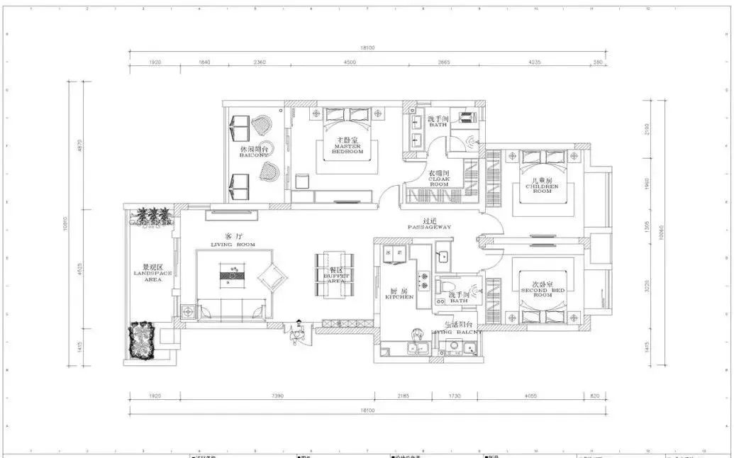
  户型图
 
  客厅
 

 
  客厅与餐厅相连,空间纵深感更强,两者相互借光,更显空间宽敞通透。沙发背景墙挂上三幅装饰画,丰富多彩。浅灰色与柠檬黄搭配的恰到好处,沉稳中不失活泼感。
 
  餐厅
 

 
  餐厅与厨房相通,移门隔开,有效避免油烟的侵扰。原木色餐桌椅搭配着插花、果盘,在三盏撞色吊灯照射下,营造出温馨的就餐环境。
 
  厨房
 

 
  厨房一字型的操作台,动线连贯,一气呵成。以白色为主色调,墙壁小方砖个性十足,展现空间的整洁利落。
 
  主卧
 

 
  主卧背景墙一面刷上了一层粉色乳胶漆,另一面刷上了浅灰色乳胶漆,视觉上更加清爽大气。落地窗外是一个小阳台,满足日常晾晒需求。窗帘与背景墙相呼应,十分温馨。
 
  衣帽间
 

 
  衣帽间不大,但是也为主人提供了丰富实用的衣物储藏空间。原木色地板,更加方便打理。
 
  次卧
 

 
  次卧衣柜,满足储物需求。奶咖色墙面,整体简洁的布置,带来了一个轻松舒适的睡眠空间。
 
  卫生间
 

 
  卫生间以白色大理石质感墙面,搭配一个圆形的金属框镜子,整体显得优雅精致而档次。洗手台外置,提高空间使用率,方便生活。
环保不达标全负责
环保不达标全负责
售后10次回访
售后10次回访
5+1电话模式
5+1电话模式
一站式·30分钟回复
一站式30分钟回复
Copyright © 烟台鸿图装饰公司 All rights reserved.            备案号:鲁ICP备17005650号            网站制作烟台智联网络公司 
Copyright © 烟台鸿图装饰公司
免费申请