服务热线:
0535-2110430

烟台
切换城市

热门城市

导航
返回顶部
返回顶部
狂欢再起 “4”不可挡
当前位置:首页 > 新闻动态

清新美式风格装修 褪却厚重让人意外的好看

 发布时间:2019-05-11     浏览量:65     分享到:
文章
导读
  如果说生活选择了平静,那么装修一定是一场冒险。选一种心仪的装修风格不亚于找到一个可以共度一生的人,装修就是一场冒险,
热门标签: 美式风格装修
  如果说生活选择了平静,那么装修一定是一场冒险。选一种心仪的装修风格不亚于找到一个可以共度一生的人,装修就是一场冒险,是一种生活品质提升的冒险,也是实现人生幸福标志的一大标志。找对好的装修公司再碰上对口味的设计师简直就是人生中最幸运的事情了。今天青岛鸿图装饰给大家分享的是一套清新是美式风格的装修效果图,118㎡三室两厅,清新自然让人意料之外的好看。   
 
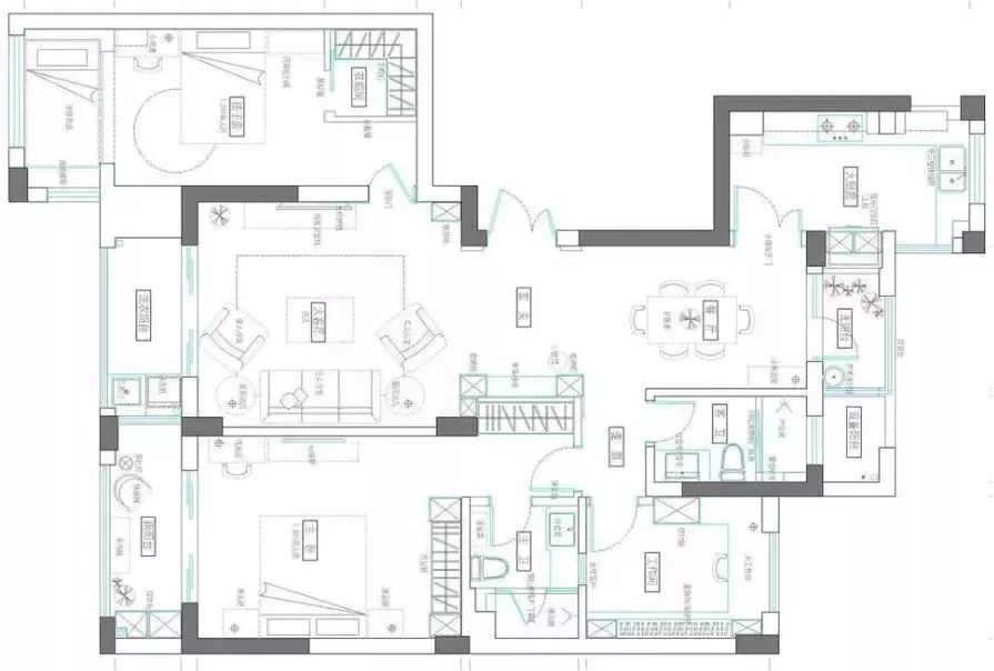
  平面布置图

 
  玄关
 

 
  ▲一进门就可以看到玄关的端景台,堆成的柜体设计对于收纳非常方便。端景台的上方选择了壁纸画面,清新雅致。两侧对称的吊顶设计让整个玄关都舒服极了,强迫症也完全不担心。
 
  客厅
 

 
  ▲电视背景墙很是简洁大方,左侧用浅蓝色乳胶漆而右侧却选择做了田字格的造型,不对称的设计给人一种视觉冲击感。
 

 
  ▲沙发背景墙搭配一组装饰画,白色沙发两侧浅蓝色小边几,温馨时尚。
 
 


 
  ▲整个客厅搭配简洁大气的硬装,配合温馨简洁的美式软装设计,整体雅致又别出新意。
 
  餐厅
 

 
  ▲餐厅墙面选择了和电视背景墙一样的浅蓝色乳胶漆在搭配上一套实木的美式风格的餐桌椅,简简单单的就餐空间却显得温馨感十足。
 
  厨房
 

 
  ▲整体L形的布局的厨房,墙面贴上灰色的墙砖,搭配白色橱柜,营造出了一个自然温馨的烹饪空间。
 
  卧室
 

 
  ▲主卧整体就是让人感到很舒服的存在,在浅颜色的木质地板的基础上在搭配美式风格的床体,以软装为主的打造出一个舒适的休息区域。墙面上的壁灯也更好的节省了空间,床头三幅植物装饰画,整体简约又大方。
 

 
  ▲白色衣柜与床尾斗柜,与深色的木质床、床头柜搭配,让空间在庄重的同时也不会显得过于深沉,清新优雅更自然。
 
  儿童房
 

 
  ▲儿童房也是选择了淡蓝色作为墙面主题色,搭配着白色的床和床头柜没有哪一个小孩子不喜欢的吧?搭配着粉色床品充满童趣。
 

 
  ▲床头靠窗的一侧设计师为小孩子设计了一个书桌椅的组合,在这里小孩子看书学习就完全不是问题了。
 

 
  ▲设计师在阳台设计了飘窗的设计,完全可以被当成儿童的休闲区,学习完了坐在这里看看窗外眺望一下远方,舒适又放松。
 
  书房
 

 
  ▲书房整体都被柜体包围,书房完全可以容纳下两个人同时办公学习,结合木色地板与棕色窗帘,营造出一个优雅自然的空间质感。
 
  卫生间
 

 
  ▲主卫延续了现代美式的空间,仿古砖张贴的墙面地面,让小空间也充满了温馨与档次感。
 

 
  ▲公卫以现代大方墙地砖,在淋浴房里面还装上了入墙式的壁龛,提供了简洁实用的卫浴用品收纳位置。
环保不达标全负责
环保不达标全负责
售后10次回访
售后10次回访
5+1电话模式
5+1电话模式
一站式·30分钟回复
一站式30分钟回复
Copyright © 烟台鸿图装饰公司 All rights reserved.            备案号:鲁ICP备17005650号            网站制作烟台智联网络公司 
Copyright © 烟台鸿图装饰公司
免费申请