时尚与古典从来都是相谐相生的,不可能隔离开来作为独立的一方而存在。中式风格经过多年的演变,衍生出了被许多朋友所接受的新中式风格,利用现代装饰的表现风格,结合中式传统文化元素,打造满足现代人生活需求的居住空间。
案例赏析
项目名称:东凤馨苑
建筑面积:148平
设计师:郭毅
装修风格:中式

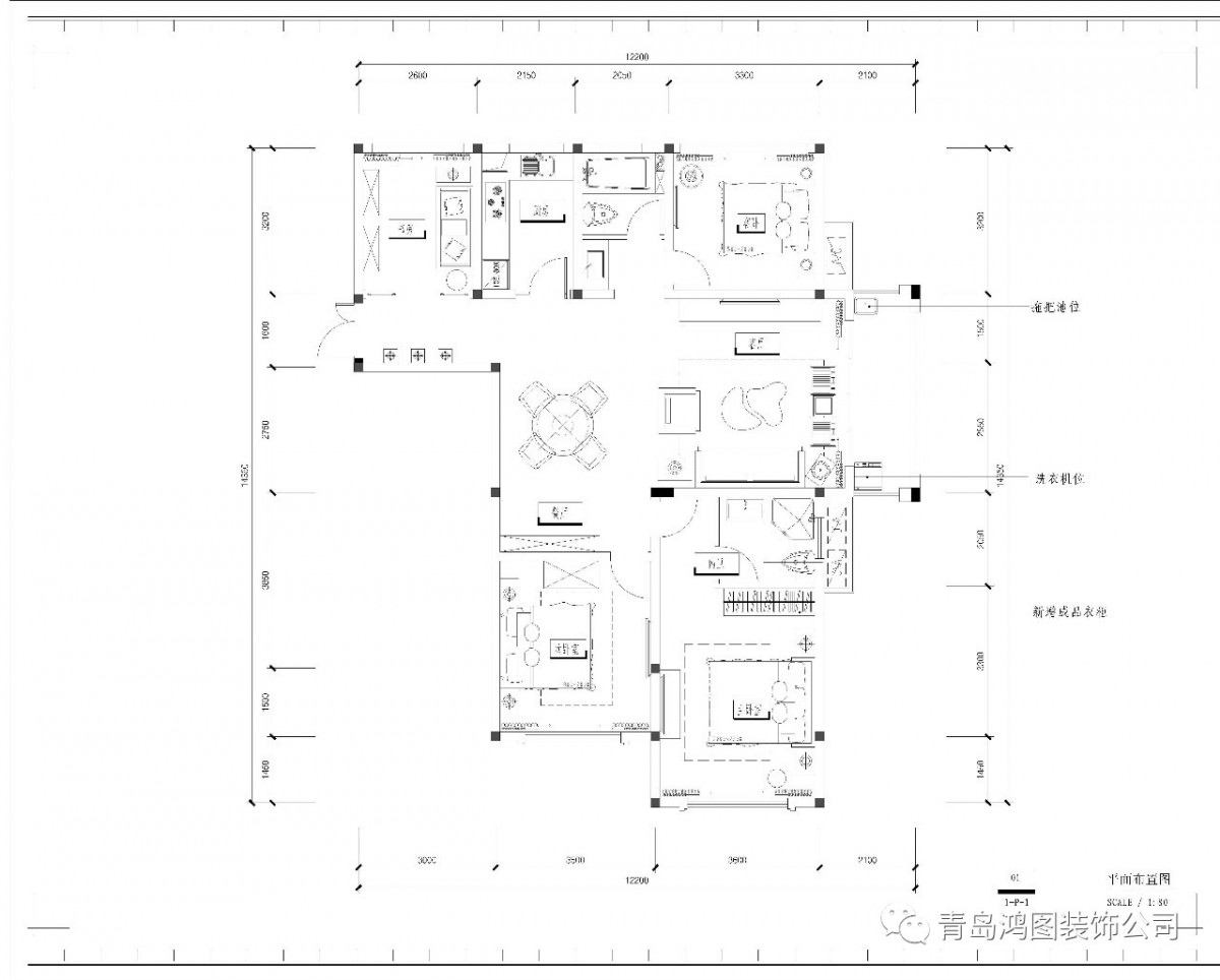
平面布局图
客厅
客厅选用大量浅棕与浅咖色,细腻而舒展,木质家具配上现代软布装饰,体现出主人优雅而舒适的生活态度。
仿石纹背景墙再现了古人善于使用大自然元素的精髓,别有一番韵味。几幅竖幅字画则让人感受到修身养性的家中环境,这也是新中式古典的精华元素之一。
书房
复古书架,增加书香世家的气氛;贵妃榻,可坐可卧,兼具休息与学习功能。整个书房忽视南京,没有喧嚣与繁冗,呈现的是一派宁静与悠远。
卫生间
卫生间明黄色主色调,复古韵味十足,干湿分离设计又很好的贴合现代生活。当古典元素与现代设计巧妙相融合,带来的是浓郁的生活感。